Продажа / покупка: Продажа помещение 204,2 м2 ул Киселева 17, Минск,
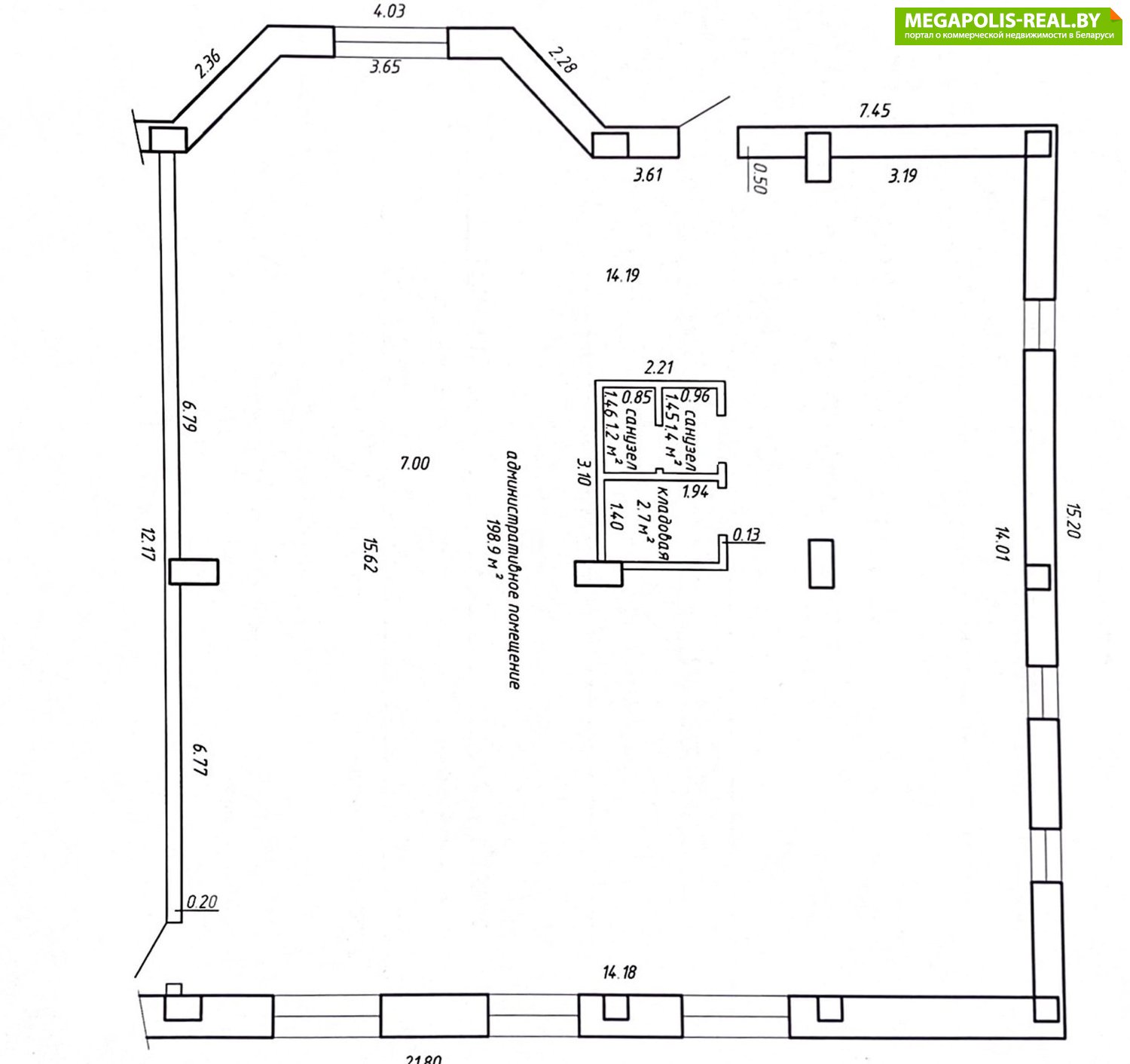
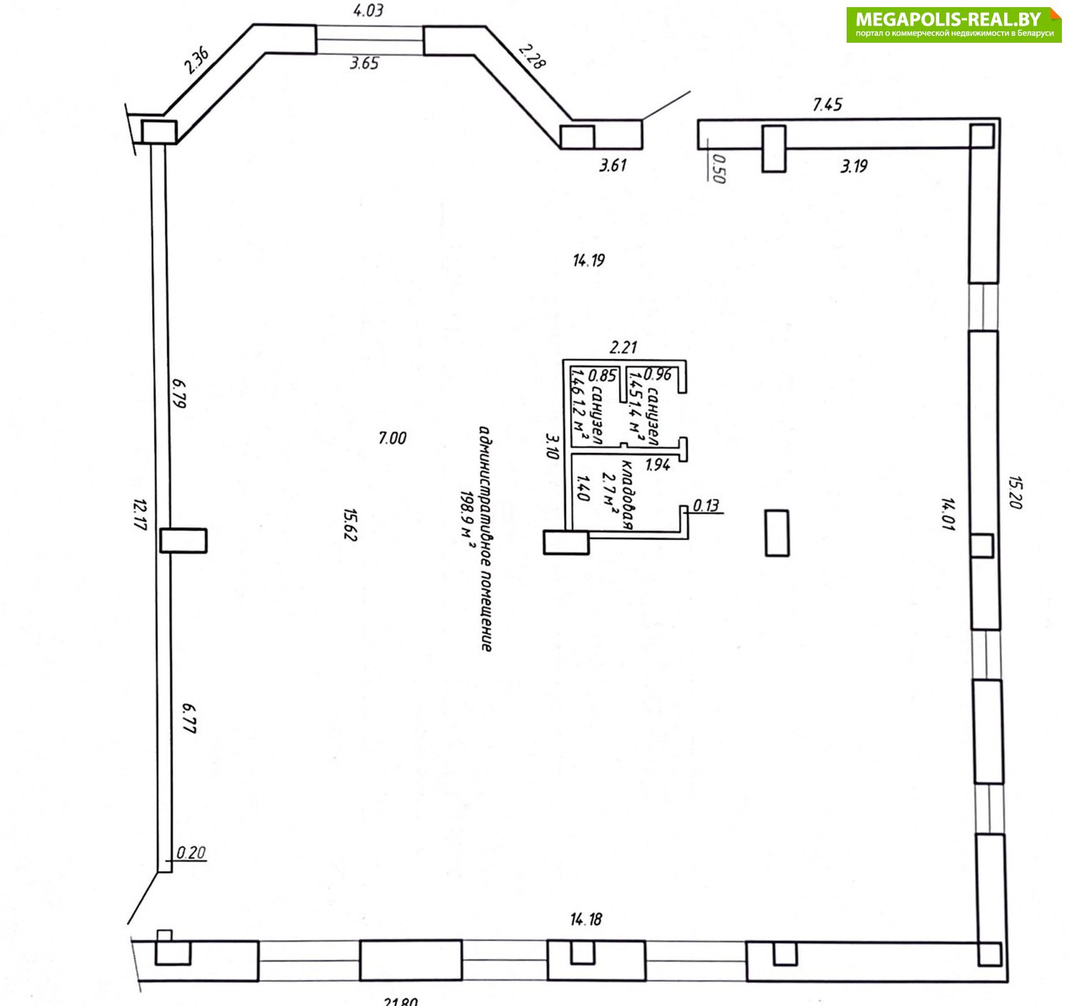
Предлагаем в покупку коммерческое помещение общей площадью 204,2 м2 с арендаторами (готовый арендный бизнес).
Объект расположен в одной из самых престижных и популярных локаций города – ст.м. Площадь Победы. Коммерческое помещение расположено в элитном жилом комплексе по адресу ул.Киселева, 17:
- первый этаж
- отдельный вход
- собственная парковка возле здания
- в пешей доступности остановки общественного транспорта, ст.м. Площадь Победы.
ЖК «Времена года» - это новый престижный комплекс в самом сердце Минска с развитой инфраструктурой, высоким пешеходным и автомобильным трафиком, удобным расположением рядом с основными магистралями.
Быстрый доступ к основным деловым и культурным центрам, в шаговой доступности большое количество развлекательных заведений, исторический район Осмоловка и новый Квартал Депо.
В помещении проведены коммуникации:
- электроснабжение, вода, отопление, собственный с/у, пожарная сигнализация, вентиляция, телефонная сеть.
Невысокие коммунальные платежи.
Свяжитесь с нами для получения дополнительной информации и организации просмотра!
Покупатель не оплачивает услуги агентства!
- Год постройки: 2016
- Площадь: 204 м2
- Этаж: 1
- Ремонт: хороший
- Интернет: есть
- Парковка: да
- Близость к метро: Площадь Победы
- Питание: магазин
- Высота потолка: 3,34
- Мощность электричества: 20
- Регион: Минск и район
- Населенный пункт: Минск
- Район: Центральный
- Микрорайон: Киселева
- Адрес: КИСЕЛЕВА 17
- Контактное лицо: Наталья
- Телефон: +375 29 380-85-85
- E-mail: marielt.komm@mail.ru
- Телефон: +375 29 380-85-85
- Вид сделки: Предложение
- Цена: без НДС
- Форма собственности: Частная
- Стоимость коммунальных услуг
(за все помещение):В отопительный сезон: - руб.В неотопительный сезон: - руб.


в избранное





































