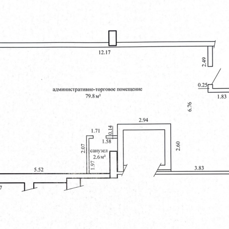
Продажа / покупка: Продажа помещения 82.4 м2 ул Киселева 17, Минск,
Коммерческое помещение расположено в самом сердце Минска по адресу ул.Киселева, 17:
- первый этаж
- отдельный вход 24/7
- собственная парковка под шлагбаумом возле здания.
- в пешей доступности остановки общественного транспорта, ст.м. Площадь Победы.
Помещение общей площадью 82,4 м2. с арендаторами (готовый арендный бизнес).
Новый престижный комплекс с развитой инфраструктурой, высоким пешеходным и автомобильным трафиком, быстрым доступом в любую точку города.
В шаговой доступности большое количество развлекательных заведений, основные деловые и культурные центры, учреждения здравоохранения, исторический район Осмоловка и новый Квартал Депо.
В помещении проведены коммуникации:
- электроснабжение, вода, отопление, собственный с/у, пожарная сигнализация, вентиляция, телефонная сеть.
Свяжитесь с нами для получения дополнительной информации и организации просмотра!
Покупатель не оплачивает услуги агентства!
- Год постройки: 2016
- Площадь: 82 м2
- Этаж: 1
- Интернет: есть
- Близость к метро: Площадь Победы
- Питание: магазин
- Высота потолка: 3,34
- Мощность электричества: 20 кВт
- Регион: Минск и район
- Населенный пункт: Минск
- Район: Центральный
- Микрорайон: Киселева
- Адрес: КИСЕЛЕВА 17
- Контактное лицо: Наталья
- Телефон: +375 29 380-85-85
- E-mail: marielt.komm@mail.ru
- Телефон: +375 29 380-85-85
- Вид сделки: Предложение
- Цена: с НДС
- Форма собственности: Частная
- Стоимость коммунальных услуг
(за все помещение):В отопительный сезон: - руб.В неотопительный сезон: - руб.


в избранное





























