Продажа / покупка: Продажа помещения 434,9 кв.м возле МКАД, под склад, торговлю, шоурум, Сенницкий с/с,
Просторное коммерческое помещение у МКАД — отличная инвестиция для вашего бизнеса!
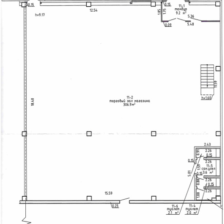
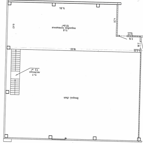
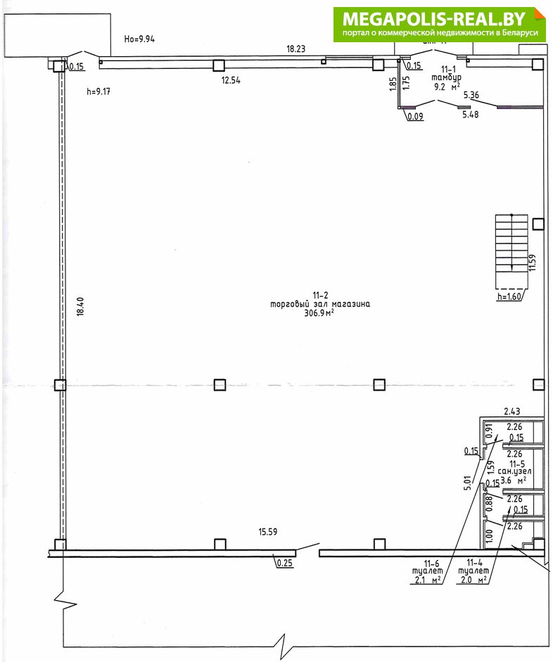
Предлагается к продаже универсальное помещение площадью 434,9 кв.м с высокими потолками 9 метров, что открывает широкие возможности для использования: склад, торговая площадка, шоурум или комбинированный формат.
Преимущества:
- Отличная видимость с кольцевой дороги — идеальная реклама вашего бизнеса
- Удобный подъезд и выгодное расположение рядом с МКАД
- Все необходимые коммуникации: вода, санузел
- Наличие офисной зоны для комфортной работы персонала
- Простор и функциональная планировка
Помещение подойдет как для собственного бизнеса, так и для инвестиции.
- Площадь: 434 м2
- Этаж: 1
- Интернет: да
- Парковка: да
- Режим работы здания: 24/7
- Высота потолка: 9
- Вентиляция: да
- Первая линия объекта: да
- Вход в помещение: Отдельный
- Контактное лицо: Ирина
- Телефон: +375 29 151-79-64
- E-mail: fediram@mail.ru
- Телефон: +375 29 151-79-64
- Вид сделки: Предложение
- Цена: с НДС
- Форма собственности: Частная


в избранное




