Продажа / покупка: Продажа помещения общепита 237,9 м2 ул Немига 38, Минск,
Уникальная логистика и высокая проходимость обеспечены благодаря трем отдельным входам:
• Отдельный вход с улицы (24/7).
• Доступ через центральный лобби бизнес-центра.
• Отдельный въезд под шлагбаум во внутренний двор с рампой для погрузки-разгрузки.
Это идеальное решение для бесперебойной работы служб доставки и приема продукции.
Характеристики:
Выделенная электрическая мощность 50 кВт.
мощная приточно-вытяжная вентиляция и профессиональная вытяжка над технологической зоной.
• Посадочный зал 107 м2
с зоной под гардероб;
• Оборудованная барная стойка;
• Полноценный цех кухни;
• Подсобные помещения для хранения и разделки продукции;
• Отдельный кабинет бухгалтерии/администратора;
• Раздельные санузлы (для гостей и для персонала);
• Увеличенное количество точек водоснабжения в подсобных и моечных зонах (удобство для интенсивной эксплуатации).
Преимущества локации:
Объект находится в зоне с высокой концентрацией офисов класса А и Б, а также в непосредственной близости от строящегося жилого комплекса премиум-сегмента. Это обеспечивает стабильный поток состоятельной аудитории как в дневные часы (business lunch, встречи), так и вечером.
• Высокий пешеходный трафик: расположение у пешеходного перехода и остановки общественного транспорта.
• Максимальная видимость: огромные витринные стекла дают отличную возможность для размещения рекламы. Предусмотрены две вывески, которые обеспечивают идеальный обзор фасада как с проезжей части центральной магистрали, так и с боковых обзорных точек,
наземная парковка
- Год постройки: 2002
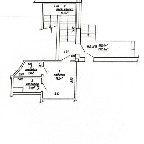
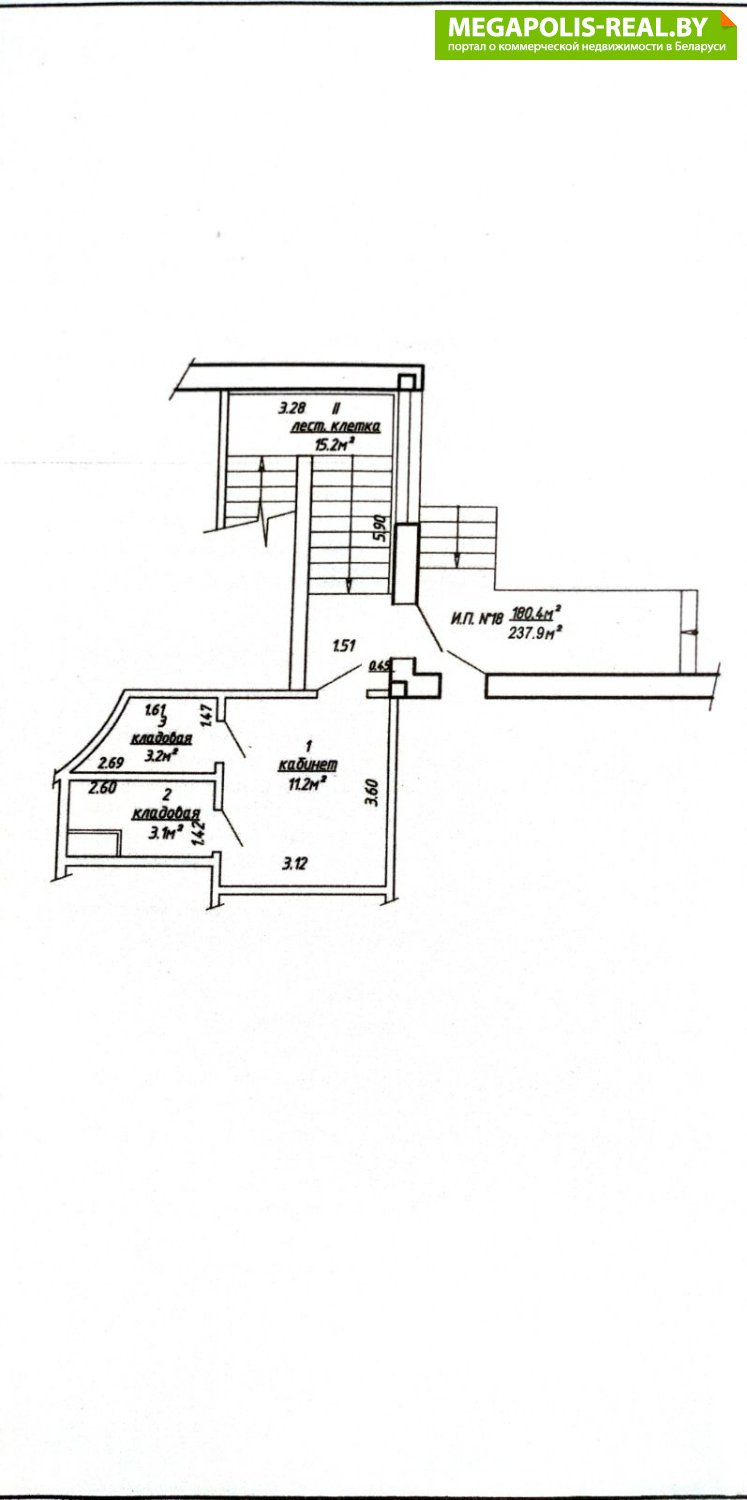
- Площадь: 237 м2
- Этаж: -1
- Ремонт: есть
- Интернет: есть
- Близость к метро: Площадь Франтишка Богушевича
- Питание: магазин
- Высота потолка: 2,93
- Мощность электричества: -
- Регион: Минск и район
- Населенный пункт: Минск
- Район: Московский
- Микрорайон: Романовская Слобода
- Адрес: НЕМИГА 38
- Контактное лицо: Вероника
- Телефон: +375 29 380-85-85
- E-mail: marielt.komm@mail.ru
- Телефон: +375 29 380-85-85
- Вид сделки: Предложение
- Цена: без НДС
- Форма собственности: Частная
- Стоимость коммунальных услуг
(за все помещение):В отопительный сезон: - руб.В неотопительный сезон: - руб.


в избранное



































