Продажа / покупка: Продажа помещения ул. Брилевская, 23, Минск,
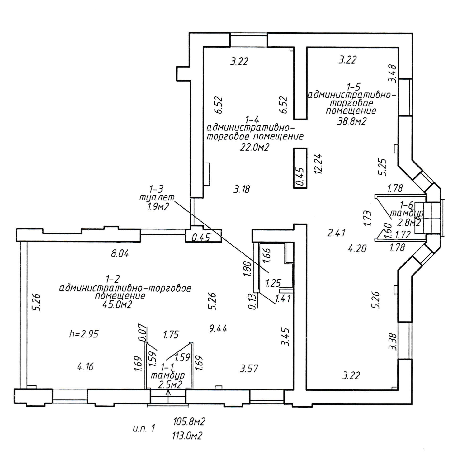
· Административно-торговое помещение с хорошей транспортной доступностью и развитой инфраструктурой, в непосредственной близости от транспортной развязки.
· Расположение помещения на 1-ом этаже с двумя отдельным входами.
· Можно разделить на двух арендаторов.
· Продаётся как инвестиционный проект
- Высокие потолки
- Хороший ремонт
- Рядом жилой комплекс "Минск Мир".
- Перекрёсток, второе транспортное кольцо, очень плотный трафик авто.
- Можно использовать как сферу услуг, торговое помещение или административное.
- Звоните, ответим на все Ваши вопросы.
- Площадь: 113 м2
- Этаж: 1
- Интернет: есть
- Парковка: да
- Режим работы здания: 24/7
- Близость к метро: Аэродромная
- Питание: магазин
- Высота потолка: 2,95
- Мощность электричества: -
- МФК: Минск Мир (Minsk World)
- Регион: Минск и район
- Населенный пункт: Минск
- Район: Октябрьский
- Микрорайон: Минск-Мир
- Адрес: БРИЛЕВСКАЯ 23
- Контактное лицо: Фёдор
- Телефон: +375 29 659-09-24
- E-mail: novy_dom@tut.by
- Телефон: +375 29 659-09-24
- Вид сделки: Предложение
- Цена: без НДС
- Форма собственности: Частная
- Стоимость коммунальных услуг
(за все помещение):В отопительный сезон: - руб.В неотопительный сезон: - руб.


в избранное






















