код 25891T
Продажа / покупка: Продажа помещения ул.Громова, 28, Минск,
26.03.2026
164
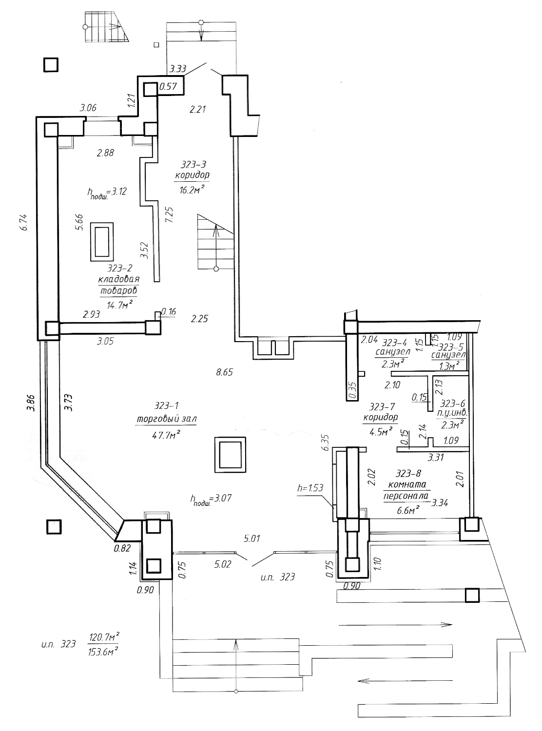
Описание объекта
- Продажа помещения как инвестиционный проект
- Помещение на первом и втором этаже в жилом доме с отдельным входом со стороны ул. Громова, расположено у прохода в дворовую территорию.
- Арка: весь трафик жильцов района с остановки в спальный район.
- Развитая инфраструктура, рядом остановки общественного транспорта.
- Имеется пожарный выход.
- Высокие потолки.
- Помещение с хорошей отделкой. Можно использовать как сферу услуг, торговое помещение или административное.
Звоните, ответим на все Ваши вопросы.
Параметры объекта
- Год постройки: 2007
- Площадь: 153 м2
- Этаж: 1
- Интернет: есть
- Парковка: да
- Режим работы здания: 24/7
- Близость к метро: Малиновка
- Питание: магазин
- Высота потолка: 3,06
- Мощность электричества: -
Местоположение
- Регион: Минск и район
- Населенный пункт: Минск
- Район: Московский
- Микрорайон: Малиновка
- Адрес: Громова 28
Финансовые показатели объекта
Контактная информация
Агентство недвижимостиКвартиры столицы
УНП: 192761975
Лицензия: 02240/329
Договор: 205/1 от 30.09.2025
- Контактное лицо: Фёдор
- Телефон: +375 29 659-09-24
- E-mail: novy_dom@tut.by
- Телефон: +375 29 659-09-24
768 213 BYN
260 100 $
225 805 €
5 021 BYN/M2
1 700,00 $/M2
1 475,85 €/M2
- Вид сделки: Предложение
- Цена: без НДС
- Форма собственности: Частная
- Стоимость коммунальных услуг
(за все помещение):В отопительный сезон: - руб.В неотопительный сезон: - руб.
Поделиться в соцсетях


в избранное


























