Продается квартира по адресу Правда газеты просп. д. 3, г. Минск
- Количество комнат: однокомнатная
- Этаж: 6 этаж из 9
- Санузел: раздельный
- Год постройки: 2012
Однокомнатная квартира большой площади в доме повышенной комфортности
Кирпичный дом повышенной комфортности 2012 года постройки.
Квартира расположена на 6-м этаже, 9-этажного дома.
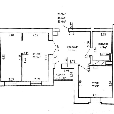
Площади составляют 46,6 ( по СНБ 48) / 20,9 / 9,9 м2.
Квартира практически перепланирована ( узаконено) в двухкомнатную . Осталось установить межкомнатную дверь, и Вы можете ее использовать как двухкомнатную.
Оригинальная и очень удобная планировка:
-вместительный коридор (10,9 м.кв.) позволит разместить все шкафы и организовать необходимые места хранения, что увеличит пространство жилых комнат, позволяет п использовать их только для спальных мест и организации отдыха и проживания.
-площадной санузел (4,9) – это возможность разместить все необходимое сантехническое и бытовое оборудование . Это удобно, практично и не тесно!
-кухня вместительная ,может заменить гостиную для небольшой семьи.
-в квартире три окна и балконная группа , поэтому много света. Прекрасный вид из окна (позволяет любоваться вечерним Минском).Лоджия примыкает к коридору, что дает дополнительное дневное освещение пространства. Вы оцените оригинальность и удобство такого расположения , так как доступность к лоджии не сопряжена с необходимостью беспокоить членов семьи, расположившихся в комнате или кухне.
- высота потолка 2,72м – это объем, свет и воздух.
В цену включена встроенная кухня с техникой , ламинированные полы, натяжные потолки.
Дом расположен в близи парковой зоны, рядом находятся школы,гимназии, детские сады, рядом немецкое посольство.
Материал стен – кирпич, - редкость для современного строительства.
Чистый и очень аккуратный подъезд. Интеллигентные соседи. Широкие лестничные пролеты, лифт выполняет функции не только пассажирского, но и грузового. Огромное количество парковочных мест – жилой комплекс образует продуманное внутреннее пространство, где есть место и детским площадкам и парковкам.
Удобный выезд на МКАД, это позволяет быстро попасть в любую точку города,
до станции метро Петровщина- 600 метров (5 минут пешком)
Отлично развитая инфраструктура: в шаговой доступности множество разнообразных магазинов и гипермаркетов: «Радзивиловский», «Евроопт», ТРЦ «Титан», ТЦ «Кирмаш», детская и взрослая поликлиники, банки, аптеки и т.д. Все, что нужно для комфортной жизни, находится в непосредственной близости.
Идеальный вариант как для жизни, для молодой семьи , так и сдачи в аренду.
Если Вы знаете этот район и в поиске звоните приходите , показ организуем в удобное время. А если Вы не знаете этот район, но в поиске, тем более стоит позвонить и посмотреть.
Встречный вариант подобран.
Общая площадь указана по СНБ.
Лицензия: №02240/362 МЮ РБ, 31.07.2018
- Регион: Минск и район
- Населенный пункт: г. Минск
- Микрорайон: Юго-Запад
- Адрес: Правда газеты просп. д. 3
- Метро: Петровщина
- Район: Московский
- Контактное лицо: Ирина
- Телефон: +375 44 501-80-20
- Телефон: +375 44 501-80-20
- Продажа квартиры


в избранное

























































































































