Продается квартира по адресу Звязда газеты просп. д. 17, г. Минск
- Количество комнат: двухкомнатная
- Этаж: 1 этаж из 9
- Санузел: раздельный
- Год постройки: 1978
Двухкомнатная квартира в шаговой доступности от метро Петровщина! Адрес: Минск, пр-т Газеты Звязда, д. 17.
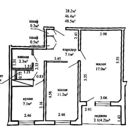
1й этаж. Площадь квартиры по СНБ 48,5 кв.м. Застекленная лоджия. Окна стеклопакеты. Ремонт в квартире делался около 15 лет назад. 2 комнаты площадью 17,0 и 11,2 кв.м. Из комнаты 11,2 кв.м сделан вход в кухню. С/у совмещен.
Благоустроенный зелёный районе с развитой инфраструктурой. В шаговой доступности магазины, школы, детский сад, рынок, банк. Вариант подходит как для проживания, так и для сдачи в аренду! В доме выполнен капитальный ремонт. Произведена замена сантехнических коммуникаций. В квартире никто не прописан. Ключи в день сделки!
Лицензия: 02240/446 МЮ РБ, 11.07.2022
- Регион: Минск и район
- Населенный пункт: г. Минск
- Микрорайон: Юго-Запад
- Адрес: Звязда газеты просп. д. 17
- Метро: Петровщина
- Район: Московский
- Контактное лицо: Фаттория
- Телефон: +375 29 203-51-84
- Телефон: +375 29 203-51-84
- Продажа квартиры


в избранное





































