Продается квартира по адресу Пушкина просп. д. 36, г. Минск
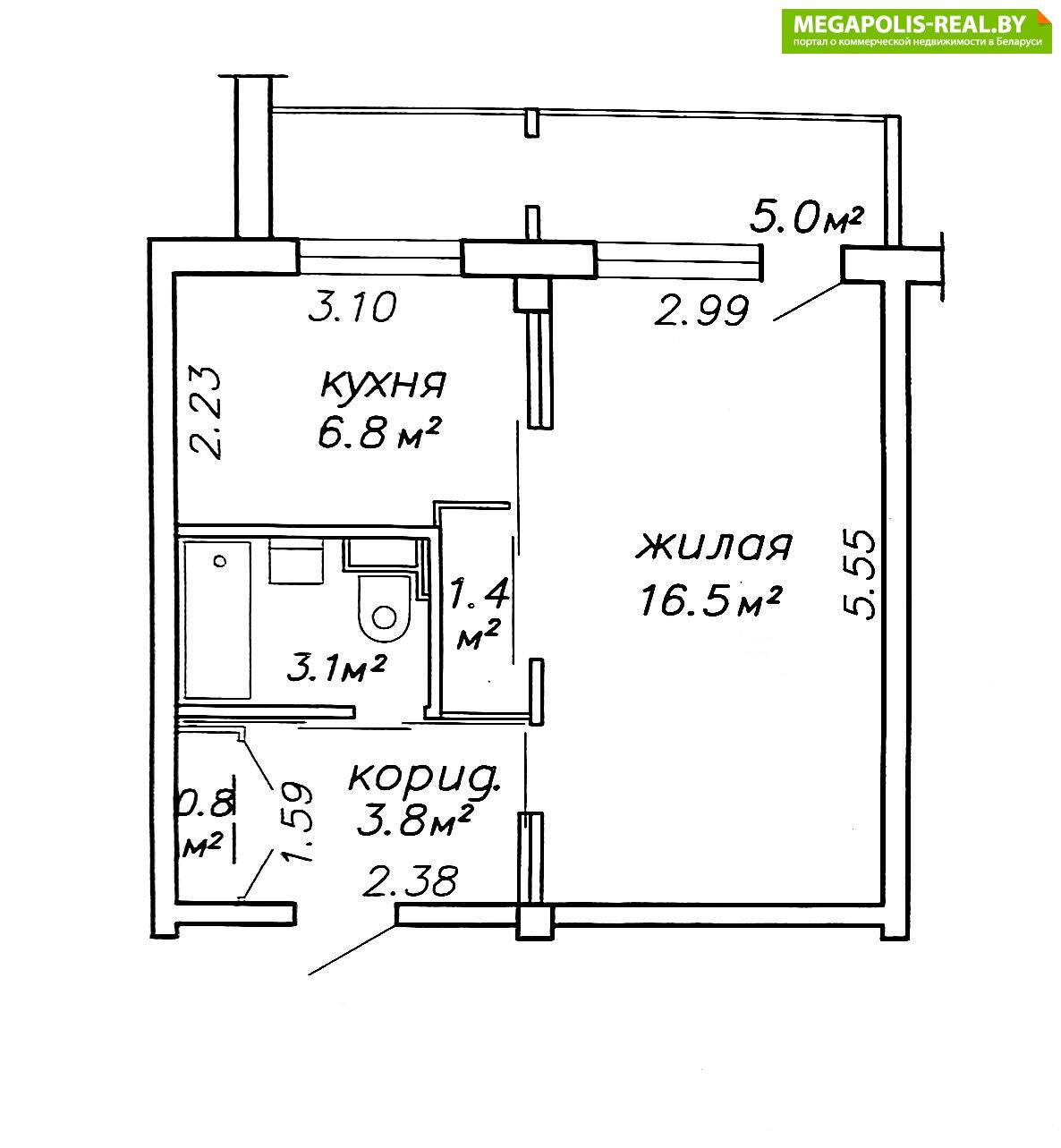
- Количество комнат: однокомнатная
- Этаж: 9 этаж из 9
- Санузел: раздельный
- Год постройки: 1970
Продается 1-комн. квартира в 2 минутах ходьбы от метро!
Идеальная локация!
Важным преимуществом является то, что в квартире остается вся мебель и бытовая техника, что позволяет сразу переехать и наслаждаться комфортом!
Панельный дом 1970 г. постройки. Капитальный ремонт был произведен в 2016 году.
Квартира расположена на 9-м панорамном этаже. Качественный ремонт, выполнен в светлых тонах. Проводка заменена на медную. Межкомнатные двери с магнитными замками и фурнитурой Blum. Натяжные потолки по всей квартире. Плитка в санузлах актуального дизайна. Комфортный климат поддерживает кондиционер.
Освещение и карниз в основной комнате, дополнительное освещение в прихожей и ТВ-зоне, кондиционер управляются через Wi-Fi – умный дом с Алисой.
Имеется полноценное спальное место 140*200 см., в виде встроенной в шкаф кровати.
Встроенная кухня укомплектована бытовой техникой LG и Bosch.
Двойная лоджия утеплена и застеклена французскими теплосберегающими стеклопакетами. В одной части организовано полноценное рабочее место, а в другой зона отдыха.
Станция метро «Пушкинская» и остановка общественного транспорта расположены в шаговой доступности, что обеспечивает удобное сообщение со всеми районами города.
Квартира расположена в благоустроенном районе и имеет все необходимые объекты инфраструктуры: детские сады, школы, поликлинику, торговые объекты, заведения быстрого питания, рынок «Раковский Кирмаш», кинотеатр «Аврора», Ледовый дворец, банковские и почтовые отделения, салоны красоты, и многое другое.
Прекрасный вариант, как для проживания, так и для сдачи в аренду.
*Работаем со всеми видами кредитования.
*Если у вас остались какие-либо вопросы – звоните и мы с удовольствием на них ответим.
*Проведем БЕСПЛАТНУЮ оценку и окажем помощь в продаже вашей недвижимости.
- Регион: Минск и район
- Населенный пункт: г. Минск
- Микрорайон: Пушкина
- Адрес: Пушкина просп. д. 36
- Метро: Пушкинская
- Район: Фрунзенский
- Контактное лицо: Агентство Алькор
- Телефон: +375 33 914-28-28
- Телефон: +375 33 914-28-28
- Продажа квартиры


в избранное























































































































