Продается квартира по адресу Кольцова ул. д. 32, г. Минск
- Количество комнат: двухкомнатная
- Этаж: 6 этаж из 9
- Санузел: раздельный
- Год постройки: 1974
3-комнатная квартира в кирпичном доме!
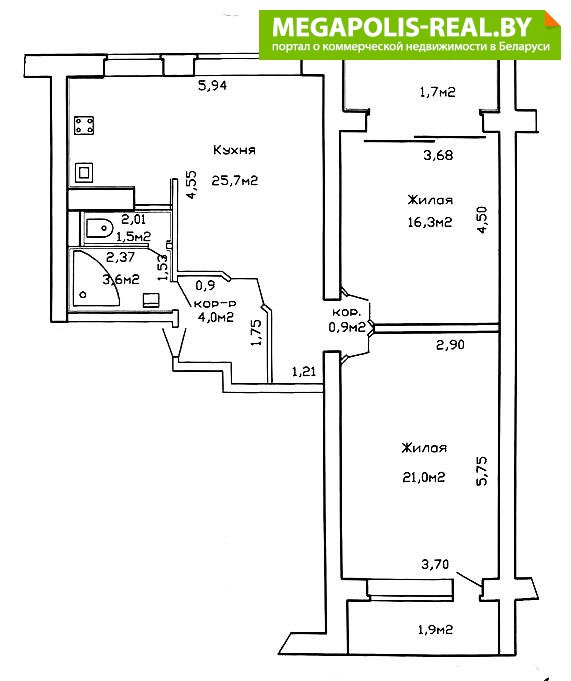
Общая площадь(СНБ): 76,6 м2
Просторная зона кухни-гостиной – 25,7 м2
Две жилые комнаты – 16 м2 и 22 м2Дом после капитального ремонтаЭтаж: 6 из 9 (обеспечивает отличную инсоляцию, окна на две стороны).Квартира с отличной узаконенной перепланировкой, полностью готова к проживанию. Очень светлая кухня-гостиная благодаря наличию двух больших окон. Комплектация кухни: холодильник, печь СВЧ, духовой шкаф, посудомоечная машина, вытяжка, система фильтрации питьевой воды. В ванной комнате установлен бойлер. Вся мебель и бытовая техника переходит к новому собственнику.
В квартире заменены стеклопакеты, функционирует система «теплый пол», дом после капитального ремонта (обновлен фасад, заменены сантехнические коммуникации).
Преимущества района:
· в пару минутах ходьбы Цнянское водохранилище и красивая зона отдыха,
· зеленый район и современная развитая инфраструктура: 5 детских садов, 3 школы, детская и взрослая поликлиника, аптеки, магазины, банки, почтовые отделения.
Транспортная доступность:
· остановка транспорта в пешей доступности от дома: автобусы, троллейбусы, маршрутные такси,
· пешая доступность от метро в скором будущем!Это идеальный вариант как для собственного проживания, так и для инвестиций! Звоните для организации просмотра!
Лицензия: №02240/362 МЮ РБ, 31.07.2018
- Регион: Минск и район
- Населенный пункт: г. Минск
- Микрорайон: Зеленый луг
- Адрес: Кольцова ул. д. 32
- Район: Советский
- Контактное лицо: Фаттория Плюс
- Телефон: +375 29 640-05-03
- Телефон: +375 29 640-05-03
- Продажа квартиры


в избранное












































