Продается квартира по адресу Богдановича пер. д. 34, г. Минск
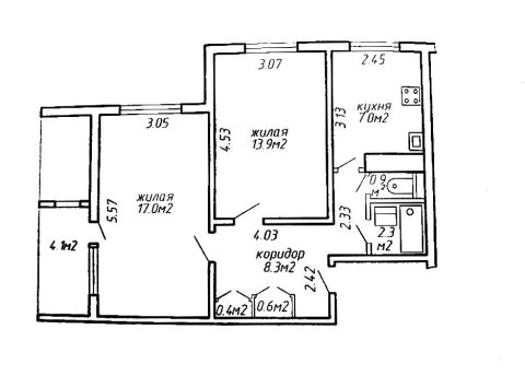
- Количество комнат: трехкомнатная
- Этаж: 1 этаж из 3
- Санузел: раздельный
- Год постройки: 2013
Современный таунхаус в Минске с выделенным участком!
Ключевые плюсы таунхауса - более низкая стоимость по сравнению с частным домом, меньшее количество соседей по сравнению с квартирой (все соседи по дому просто золотые), наличие собственного небольшого придомового участка (включая парковку на минимум 2 автомобиля), а также возможность проживания в экологически чистом районе с развитой инфраструктурой.
Таунхаус состоит из 2 уровней (первый и цокольный). Вода и канализация центральные. Газ. Отопление воздушное (высокая скорость нагрева, возможность совмещения с вентиляцией и кондиционированием, а также отсутствие радиаторов в интерьере).
На 1 этаже располагается 2 жилые комнаты, 2 с/у и кухня-гостиная с выходом на террасу, а так-же лестница для спуска в цоколь (есть вход и с улицы). Высота потолка 3 метра. На стенах декоративная штукатурка, на полах ламинат, потолки из гипсокартона.
В цокольном этаже располагаются помещения с коммуникациями, где есть возможность обустроить баню и комнату отдыха, а так-же большое помещение 41,6 м2 с высотой потолка в 3м, где можно обустроить кинотеатр, музыкальную студию, бассейн, тренажерный зал, пивоварню или воплотить в жизнь любую другую мечту.
Работаем со всеми видами кредитования!
Если у Вас остались какие-либо вопросы – звоните и мы с удовольствием на них ответим.
Бесплатно оценим и окажем помощь в продаже Вашей недвижимости.
- Регион: Минск и район
- Населенный пункт: г. Минск
- Микрорайон: Зеленый луг
- Адрес: Богдановича пер. д. 34
- Метро: Московская
- Район: Советский
- Контактное лицо: Агентство Алькор
- Телефон: +375 33 914-28-28
- Телефон: +375 33 914-28-28
- Продажа квартиры


в избранное






































































