Продается квартира по адресу Красноармейская ул. д. 8, г. Минск
- Количество комнат: двухкомнатная
- Этаж: 4 этаж из 4
- Санузел: раздельный
- Планировка: сталинка
- Год постройки: 1955
Продаётся эксклюзивная квартира "Сталинка" площадью 61,6 м2 в кирпичном доме в историческом центре Минска, ул.Красноармейская, дом 8; возле Президент- Отель; уникальное расположение дома; 4/4 этаж; приглашаем на просмотр! Торг
Индивидуальные проекты 4-х этажных домов 1941-1957 г
Дом "Красноармейская 8" - расположен в тихом центре столицы!
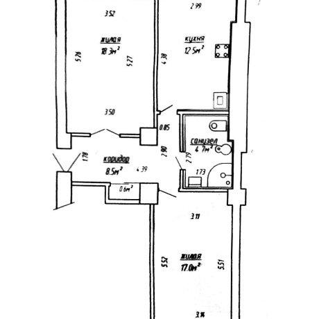
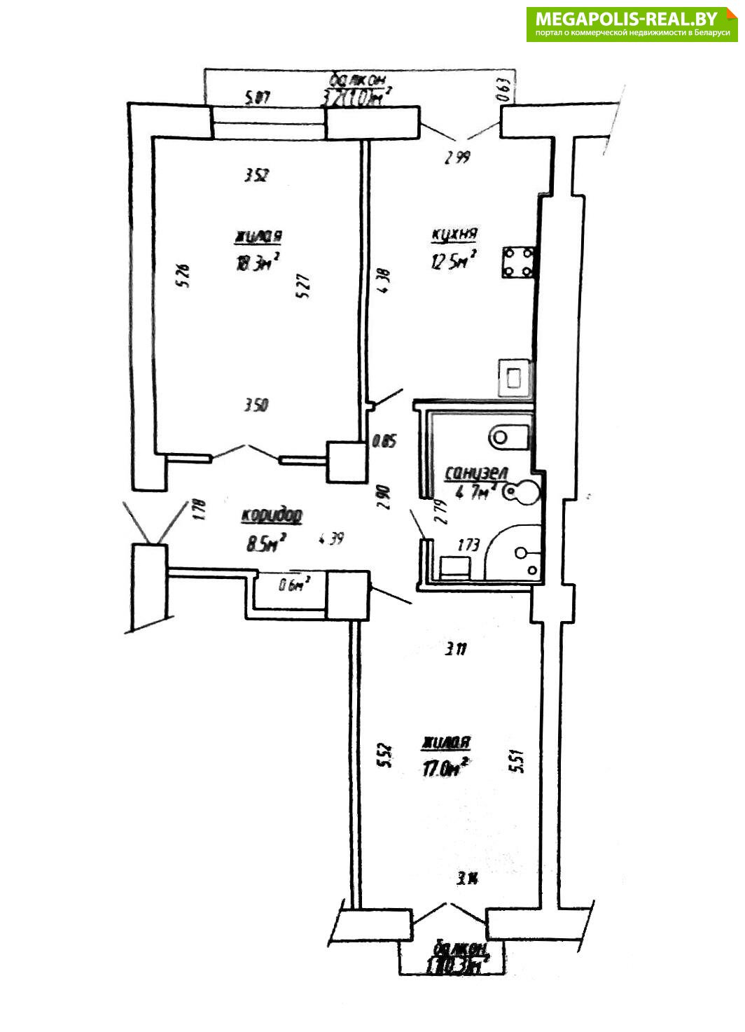
Высота потолков – 2,83 метра! Отличная планировка: жилая1 – 18,3 м2; жилая2 – 17,0 м2; кухня – 12,5 м2; коридор -8,5 м2; санузел совмещен 4,7- м2! Окна выходят на две стороны, французские блаконы.
Рядом вся инфраструктура, необходимая для комфортного проживания и отдыха, множество кафе и ресторанов, магазины, школа, гимназия, детский сад, поликлиника, аптека; отличное транспортное сообщение, станция метро Октябрьская, Первомайская, Площадь победы!
Эта квартира идеально подойдет как для тех, кто хочет жить в центре и не слышать городского шума!
Квартира отлично подойдёт как для проживания, так и для аренды — локация востребована круглый год.
Такой шанс — редкость. Пространство с душой, в центре города, с гибкими возможностями.
Показываем квартиру в любое удобное время.
Звоните, чтобы договориться о просмотре — такие предложения долго не задерживаются!
Лицензия: 02240/446 МЮ РБ, 11.07.2022
- Регион: Минск и район
- Населенный пункт: г. Минск
- Микрорайон: Ленина
- Адрес: Красноармейская ул. д. 8
- Метро: Площадь Ленина
- Район: Ленинский
- Контактное лицо: Фаттория
- Телефон: +375 29 190-00-88
- Телефон: +375 29 190-00-88
- Продажа квартиры


в избранное















































