Продается квартира по адресу Независимости просп. д. 22, г. Минск
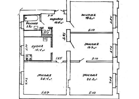
- Количество комнат: четырехкомнатная
- Этаж: 3 этаж из 5
- Санузел: раздельный
- Планировка: сталинка
- Год постройки: 1954
Четырехкомнатная квартира на ст.м. Купаловская!!!
Продается уникальная квартира 96,7 м2 в сердце столицы на проспекте Независимости, 22
Приглашаем вас в настоящую жемчужину престижного района — просторную 3-комнатную квартиру в знаменитой «сталинке». Это не просто квадратные метры, это шанс обладать частичкой истории в самом центре городской жизни.
Почувствуйте дыхание столицы, едва переступив порог. Вас встречает большой холл-столовая — идеальное пространство для приема гостей и вечеров в кругу семьи. Три раздельные комнаты дарят абсолютное уединение и свободу для планировки. А главная роскошь сталинской планировки — вместительная ванная комната 7,5 м2 — место, где можно расслабиться после насыщенного дня.
Особое очарование квартире придают виды из окон на центр города. Откройте их — и весь ритм столицы окажется у вас под ногами. Пешая доступность к лучшим кафе, ресторанам, театрам и магазинам делает вашу жизнь невероятно удобной и яркой. А уникальное преимущество — станция метро прямо в вашем доме — снимает вопрос с транспортной доступностью навсегда.
Ключевые особенности:
· Площадь: 96,7 м2
· Этаж: 3-й из 5 в кирпичном доме
· Планировка: 3 раздельные комнаты + большой холл-столовая
· Ванная: 7,5 м2
· Вид из окон: панорама центра города, Дворец Республики
· Локация: пр-т Независимости, 22
Это предложение для тех, кто ценит простор, исторический шарм и безупречную локацию.
Ждем ВАС!!!
Лицензия: 02240/446 от 11.07.2022, Министерство юстиции РБ
- Регион: Минск и район
- Населенный пункт: г. Минск
- Микрорайон: Ленина
- Адрес: Независимости просп. д. 22
- Метро: Площадь Ленина
- Район: Ленинский
- Контактное лицо: Инна
- Телефон: +375 29 658-80-42
- Телефон: +375 29 658-80-42
- Продажа квартиры


в избранное




















































































