Продается квартира по адресу Кунцевщина ул. д. 32, г. Минск
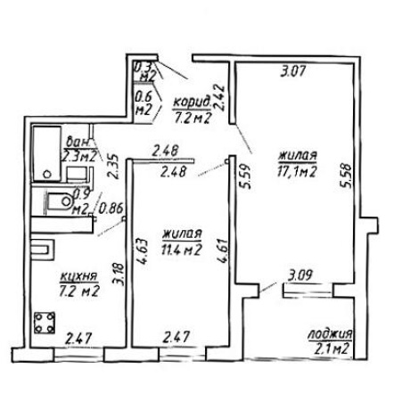
- Количество комнат: двухкомнатная
- Этаж: 3 этаж из 9
- Санузел: раздельный
- Год постройки: 1990
Продаём солнечную и тёплую двухкомнатную квартиру улица Кунцевщина дом 32.Дом 1990 года постройки, аккуратный и чистый подъезд, новый лифт, квартира расположена на третьем этаже.Состояние хорошее, жилое, площадь кухни 7,2 метра квадратных, новая кухонная мебель, стиральная машина останутся новым собственникам в подарок.Вся инфраструктура, можно сказать, за домом, метро в пешей доступности.Продаём чистой продажей, ключи отдадим в день сделки.
Общая площадь указана по СНБ.
Лицензия: №02240/362 МЮ РБ, 31.07.2018
- Регион: Минск и район
- Населенный пункт: г. Минск
- Микрорайон: Каменная горка
- Адрес: Кунцевщина ул. д. 32
- Метро: Каменная горка
- Район: Фрунзенский
- Контактное лицо: Виктория
- Телефон: +375 44 502-10-03
- Телефон: +375 44 502-10-03
- Продажа квартиры


в избранное


































































