Продается квартира по адресу Кольцевая ул. д. 5 к. а, аг. Ждановичи
- Количество комнат: трехкомнатная
- Этаж: 5 этаж из 5
- Санузел: раздельный
- Год постройки: 1993
Продается 3-комнатная квартира в аг. Ждановичи, ул Кольцевая, 5А.
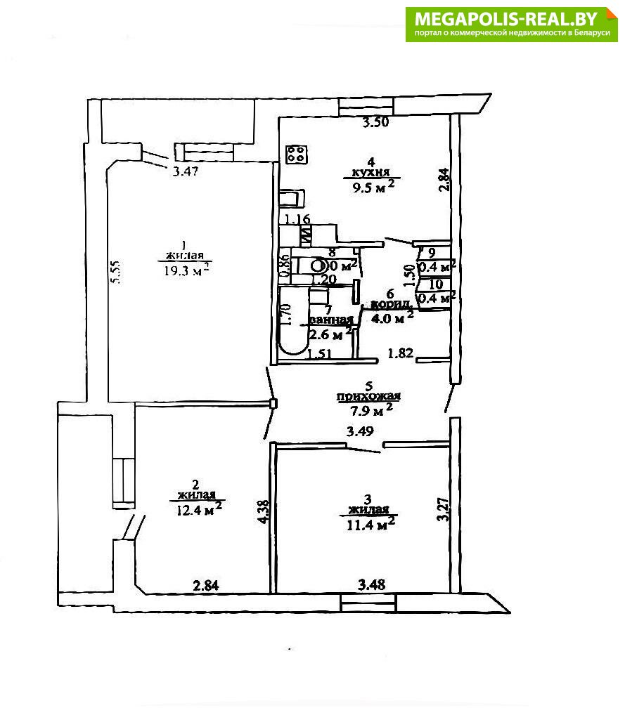
Квартира с атмосферой тепла и уюта.Отличное сочетание общей (68,9 кв.м.) и жилой площади (43,1кв.м.), кухня – 9,5 кв.м., раздельный санузел, 2 застеклённых лоджии.Большой бонус - подвал около 8-10 кв.м
В квартире установлены двухкамерные стеклопакеты, на полу паркет.В доме проводился ремонт. Он утеплен по всему периметру, новая крыша.Расположен дом вблизи кольцевой автодороги. Отличная городская инфраструктура. Всё необходимое для комфортного проживания в шаговой доступности. Через дорогу микрорайон Каменная горка.
Непосредственная близость к дому лесного массива и Минского моря обеспечит вам комфортный досуг в любое время года.Удобное транспортное сообщение: в 300 м выезд на пр. Победителей, около 1 км - на МКАД. В пешей доступности остановка общественного транспорта, электрички и поезда региональных и городских линий. 10-15 минут и вы в центре Минска.
Полное юридическое сопровождение сделки. Содействие в реализации вашей недвижимости.
Лицензия: №02240/362 МЮ РБ, 31.07.2018
- Контактное лицо: Наталья
- Телефон: +375 29 306-18-45
- Телефон: +375 29 306-18-45
- Продажа квартиры


в избранное











































