Продается квартира по адресу Маяковского ул. д. 14, г. Минск
- Количество комнат: двухкомнатная
- Этаж: 5 этаж из 11
- Санузел: раздельный
- Год постройки: 1978
Продается просторная и уютная 2-комнатная квартира Маяковского 14, в близости с центром города и вокзалом.
Эта квартира не только удивит Вас прекрасным расположением, но и предложит 50,33 м2 уютного и комфортного пространства!
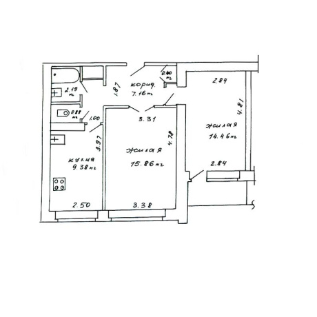
Общая площадь квартиры 52.04 кв.м, жилая 30,32 кв.м., кухня 9,38 кв.м., высота потолка 2.55 м. Санузел раздельный, что обеспечивает удобство при утренних сборах.
Дом кирпичный 1978 года постройки, что обеспечивает Вам надёжную тепло- и шумоизоляцию. Проект чешский. Установлен новый лифт. Квартира расположена на комфортном 5-м этаже 9-ти этажного дома, окна которой выходят на улицу (новую застройку).
Приятными бонусами станут пешая доступность до станций метро «Ковальская Слобода», «Пролетарская», всего 15 мин. пешком и близость до р.Свислочь, всего 5 мин. пешком!
Стремительно развивающаяся инфраструктура - в шаговой доступности: школа, детские сады, супермаркеты, банки, медцентры, кафе, рестораны, пункты выдачи и различные точки сферы услуг, а также, парк «Серебряный Лог».
В 10 минутах езды расположен богатый по своей площади «Лошицкий парк», где можно приятно провести время и отдохнуть, наслаждаясь прекрасным видом на многочисленную зелень и р.Свислочь.
Отличное транспортное сообщение. Остановка общественного транспорта прямо у дома. Два вида городского транспорта (автобус и маршрутка), удобный выезд на МКАД.
Мы с радостью покажем Вам эту квартиру! Предоставим всю необходимую информацию. И сделаем Вас её счастливым обладателем!
Лицензия: 02240/446 от 11.07.2022, Министерство юстиции РБ
- Регион: Минск и район
- Населенный пункт: г. Минск
- Микрорайон: Маяковского
- Адрес: Маяковского ул. д. 14
- Район: Ленинский
- Контактное лицо: Светлана
- Телефон: +375 29 111-90-90
- Телефон: +375 29 111-90-90
- Продажа квартиры


в избранное




























































































































