Продается квартира по адресу Виталия Цвирко ул. д. 69, г. Минск
- Количество комнат: двухкомнатная
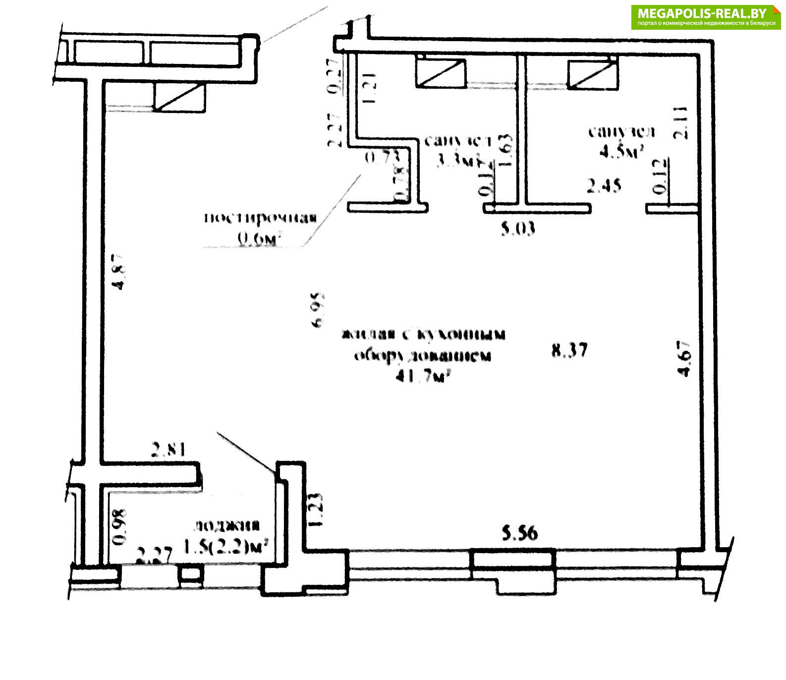
- Этаж: 6 этаж из 10
- Санузел: раздельный
- Планировка: новостройка
- Год постройки: 2025
Двухкомнатная Квартира в ЖК «СЕВЕРНЫЙ БЕРЕГ» по адресу: ул.в В. Цвирко, 69
с боковым видом на Цнянское водохранилище
Продаётся квартира 51,6 м2 по СНБ в ЖК «Северный берег» на берегу Цнянского водохранилища по адресу: ул. В. Цирко, 69
Это локация, где сочетаются природа, продуманная городская среда и комфорт бизнес-уровня.
Комфортный 6 этаж. Три больших окна - наличие света и возможность планировочных решений
Характеристики квартиры:
Площадь по СНБ: 51,6 м2 Общая площадь: 50,1 м2 Этаж: 6 из 10 Высота потолков: 2,7 м Состояние: после профессиональной приёмки, готова к чистовой отделке Балкон утеплён, с качественной стяжкой
Преимущества:
Окна на южную сторону с боковым видом на Цнянское водохранилище, с видом во двор Видеодомофон, энергосберегающие стеклопакеты Кладовая 3,7 м2 с доступом из лифта мойка для лап животных на первом этаже Закрытая территория, видеонаблюдение Подземные контейнеры, зарядки для электромобилей, велобоксы Современное дизайнерское лобби Инфраструктура и комфорт:
В шаговой доступности: парк, детский сад, торговый центр, остановки Закрытый клуб жильцов: тренажёрный зал, сауна, кинозал, пати рум, переговорная, кафе, игровая зона Собственное приложение от управляющей компании: Чистая продажа! Оперативный показ! Ждем только Вас!
Лицензия: №02240/362 от 31.07.2018, Министерство юстиции РБ
- Регион: Минск и район
- Населенный пункт: г. Минск
- Жилой комплекс: Северный Берег
- Микрорайон: Цна
- Адрес: Виталия Цвирко ул. д. 69
- Район: Советский
- Контактное лицо: Фаттория Плюс
- Телефон: +375 29 610-16-86
- Телефон: +375 29 610-16-86
- Продажа квартиры


в избранное















































































