Продается квартира по адресу ЗАХАРОВА 23, Минск
- Количество комнат: двухкомнатная
- Этаж: 4 этаж из 4
- Тип жилья: вторичное
- Тип дома: кирпичный
- Ремонт: дизайнерский
- Планировка: сталинка
- Балкон: балкон
- Парковка: бесплатная
- Год постройки: 1956
Продается 2-комнатная сталинка в центре Минска (ул.Захарова 23).
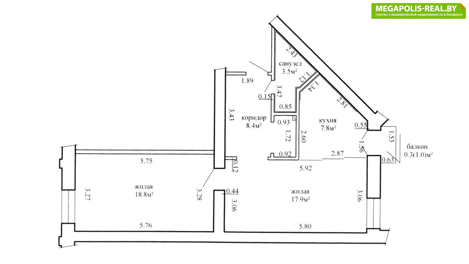
Общая площадь квартиры 56.4м2 (по СНБ 56.7м2). Жилая 36.7м2 состоит из просторной спальни 18.8м2 и большой гостиной 17.9м2. Уютная кухонная зона 7.8м2. Совмещенный санузел 3.4м2. Прихожая 8.4м2 с удобной гардеробной, оборудованной местами для хранения. Есть балкон, выходящий в тихий двор.
Квартире расположена на 4 этаже 4 этажного кирпичного дома (1956 года), являющегося памятником архитектуры, Плиты перекрытия железобетонные, Квартира очень теплая с хорошей звукоизоляцией. Благодаря большим оконным проемам в ней достаточно света, а высокие потолки 3 метра создают ощущение простора.
В квартире выполнен новый качественный ремонт, после которого никто не жил. Металлическая входная дверь. Межкомнатные двери (высота до 2.4 метра, толщина в раза больше, чем у обычных). Изготовлены из массива ольхи в классическом стиле по индивидуальному заказу. Хорошие паркетные полы. На потолке сохранена родная лепнина. Установлена качественная сантехника. Вся электрическая проводка заменена на медную.
Мебель и интерьеры подобраны в классическом французском стиле. Часть элементов ручной работы, изготовлены по индивидуальному заказу. Люстры, светильники, торшер, бра - авторской работы, сделаны мастером специально для этой квартиры. Звонок и кнопка звонка, люстра в санузле, картина в кухне - все ручной работы (стиль Стимпанк). Часть мебели отреставрирована, в том числе рабочее место писателя. На стене уютно расположились механические часы с запасом хода в две недели,
Комфортные условия для проживания. Ухоженный и чистый подъезд, тамбур на две квартиры. Образцово показательный двор с аккуратной придомовой территорией. Достаточно парковочных мест.
Настоящий тихий центр Минска. Рядом станция метро Площадь Победы. Для любителей пеших прогулок - Парк им.Горького и набережная реки Свислочь. В шаговой доступности университеты, гимназии, школы, сады, фитнесцентр, банки, магазины.
Сделайте шаг навстречу своей мечте! Звоните, согласуем удобное время осмотра. Поможем выгодно продать вашу недвижимость для покупки данного объекта. Бесплатно проконсультируем, окажем профессиональную помощь в сложных вопросах с недвижимостью, обеспечим юридическое сопровождение сделки и безопасность взаиморасчетов. Квалифицированные специалисты с большим опытом работы.
ОДО "Риэлтерский Дом", г.Минск, ул.Берестянская д.12 оф.110, 111. УНП 190113134, лицензия на право осуществления деятельности по оказанию юридических услуг (риэлтерские услуги) №02240/55 выдана 06.06.2005 Министерством юстиции Республики Беларусь, договор №46/1 от 03.09.2025
- Регион: Минск и район
- Населенный пункт: Минск
- Микрорайон: Захарова
- Адрес: ЗАХАРОВА 23
- Метро: Площадь Победы ( ~350 метров)
- Район: Партизанский
- Контактное лицо: Риэлтерский Дом
- Телефон: +375 29 639-04-59
- E-mail: rd-odo@mail.ru
- Телефон: +375 29 639-04-59
- Продажа квартиры
- Условия продажи: чистая продажа
- Собственность: частная


в избранное





































