Продается квартира по адресу Пономарева ул. д. 11 к. б, г. Минск
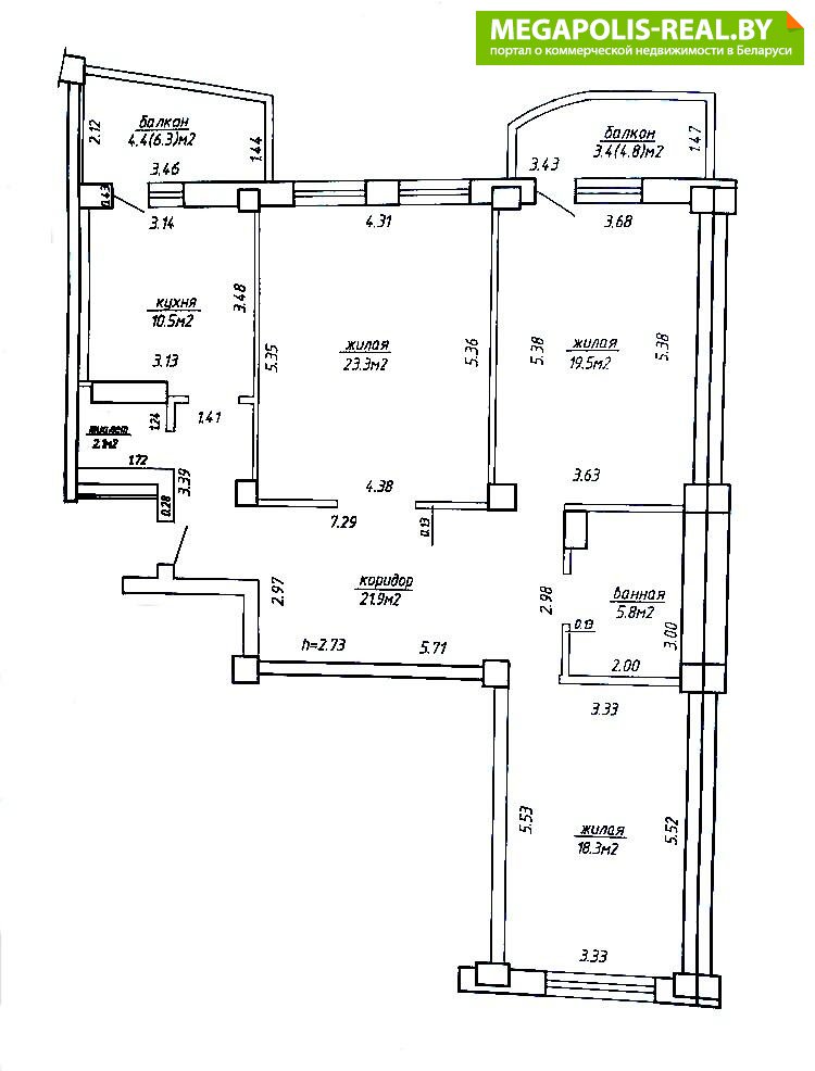
- Количество комнат: трехкомнатная
- Этаж: 5 этаж из 16
- Санузел: раздельный
- Год постройки: 2010
Просторная трёхкомнатная квартира с ремонтом в Уручье.
Площадь указана по СНБ
Каркасно-блочный дом 2010 года в элитном жилом комплексе.
Улучшенная планировка квартиры: жилые комнаты изолированные, большой раздельный санузел, огромная прихожая-холл, высокие потолки (2.74 м), два балкона застеклены и утеплены, окна выходят на разные стороны дома.
Всё это визуально делают апартаменты ещё вместительнее и светлее.
Жилой объект с ремонтом в стиле неоклассика.
Выполнена дорогостоящая отделка с применением материалов, мебели и бытовой техники от ведущих профильных производителей. Встроенная кухонная мебель с фасадом из массива и техникой.
В объекте оборудованы многочисленные места хранения, в том числе гардеробные. В санузлах кафельная плитка, мебель и сантехническая посуда из дизайнерских коллекций. Установлены приборы учёта воды и тепла, видео-домофон, оптоволоконная связь. Объект оснащён центральной системой кондиционирования воздуха.
В оконных проёмах стеклопакеты с профилем из ПВХ. Напольное покрытие: паркет, керамогранит. Комбинированные потолки с точечными и подвесными осветительными приборами. Межкомнатные двери - массив, входная металлическая.
Ухоженный подъезд. Зелёный двор. Живописные виды на сосновый лес.
Придомовая территория огорожена, охраняется и оборудована системой видеонаблюдения. В периметре газоны, детская площадка, наземная парковка, установлен шлагбаум. Развитая инфраструктура района: у дома детский сад, общеобразовательная школа, каток, магазины, остановки общественного транспорта, объекты сервисного обслуживания. Хорошее транспортное сообщение, удобный выезд на МКАД. Шаговая доступность до станции метро Уручье - 800 метров.
Жилой комплекс расположен рядом с сосновым лесом - с одной стороны и парком Уручье - с другой. Идеальное место для пеших и велопрогулок.
Поможем продавать вашу квартиру для покупки этой. Торг.
Лицензия: №02240/362 от 31.07.2018, Министерство юстиции РБ
- Регион: Минск и район
- Населенный пункт: г. Минск
- Микрорайон: Восточный
- Адрес: Пономарева ул. д. 11 к. б
- Метро: Уручье
- Район: Первомайский
- Контактное лицо: Елена
- Телефон: +375 29 625-79-36
- Телефон: +375 29 625-79-36
- Продажа квартиры


в избранное



















































































