Продается квартира по адресу Жуковского ул. д. 16, г. Минск
- Количество комнат: трехкомнатная
- Этаж: 6 этаж из 14
- Санузел: раздельный
- Планировка: новостройка
- Год постройки: 2023
3-х комнатная квартира с ремонтом возле метро!
Квартира расположена на комфортном 6-м этаже в одном из самых благоприятных районов Минска.
Отличный вид, особенно завораживает вечерний вид города с его подсветками и декорациями.
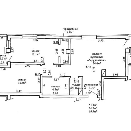
Дом каркасно-блочный 2023 года постройки. Общая площадь квартиры 65.9 м2 по СНБ с грамотной планировкой и зонированием. Высоки потолки – 2.77 м.
В квартире выполнен хороший ремонт с использованием качественных материалов и техники.
Полностью готова к проживанию!
В подъезде 1 пассажирский и 1 грузовой лифт. Также, в подъезде находится колясочная – велосипедная, вход в подъезд с двух сторон (сквозной). Соседи – культурные, порядочные люди. Внутренний двор с большой территорией, озеленением и детскими площадками, также во дворе имеются WorkOut площадка (тренажеры).
Рядом с домом расположен многоуровневый паркинг, есть возможность выкупить парковочное место или снять в аренду!
Инфраструктура. Экономьте время каждый день! Центр города с развитой логистикой. В шаговой доступности есть все необходимое для жизни: остановки общественного транспорта, станция метро Ковальская Слобода (2 минуты) и станция метро Аэродромная (10 минут), поликлиники, школы, гимназия, детский сад, аптеки, магазины, кафе, 10 минут ходьбы до самого большого в Беларуси торгово – развлекательного центра «Авиа – молл».
Общая площадь указана по СНБ.
Лицензия: №02240/362 МЮ РБ, 31.07.2018
- Регион: Минск и район
- Населенный пункт: г. Минск
- Микрорайон: Чкаловский
- Адрес: Жуковского ул. д. 16
- Метро: Ковальская Слобода
- Район: Октябрьский
- Контактное лицо: Жанна
- Телефон: +375 29 604-00-53
- Телефон: +375 29 604-00-53
- Продажа квартиры


в избранное

















































