Продается квартира по адресу Кирова ул. д. 3, г. Минск
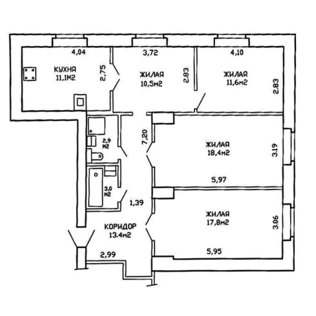
- Количество комнат: четырехкомнатная
- Этаж: 4 этаж из 5
- Санузел: раздельный
- Планировка: сталинка
- Год постройки: 1956
Квартира для тех, кто понимает в ценности жилья, место для тех, кто ценит индивидуальность и комфорт.
Если вы мечтали о спокойном, комфортном жилье, которое станет настоящим домом, то это именно то, что вам нужно!
О квартире:
- Просторные светлые комнаты
- Высокие потолки, «сталинские» кирпичные стены, утепление дома при капремонте — это гарантия теплой и сухой квартиры зимой, и прохладного микроклимата летом.
- На полу дубовый паркет.
- неоспоримое удобство наличие душ-кабины и ванны в санузлах.
- Тихий, благоустроенный двор.
-Состояние подъезда: чистый, аккуратный, без посторонних запахов.
Лицензия: №02240/362 МЮ РБ, 31.07.2018
- Регион: Минск и район
- Населенный пункт: г. Минск
- Микрорайон: Вокзал
- Адрес: Кирова ул. д. 3
- Метро: Площадь Ленина
- Район: Октябрьский
- Контактное лицо: Лариса
- Телефон: +375 44 748-09-77
- Телефон: +375 44 748-09-77
- Продажа квартиры


в избранное






















































