Аренда: Аренда офиса 228,4 кв.м в центре, МЕТРО, Минск,
Сдается в аренду офис 228,4 кв.м в бизнес-центре
Отдельный блок для всей компании
Современные инженерные решения:
системы отопления, вентиляции и кондиционирования
высокоскоростные лифты
видеонаблюдение и охрана 24/7
Удобства для арендаторов:
парковка перед зданием и во дворе
развитая инфраструктура бизнес-центра
Отличное расположение:
рядом станция метро Институт Культуры
пешая доступность до кафе, ресторанов, банков и ТЦ
престижный район с активным пешеходным и автомобильным трафиком
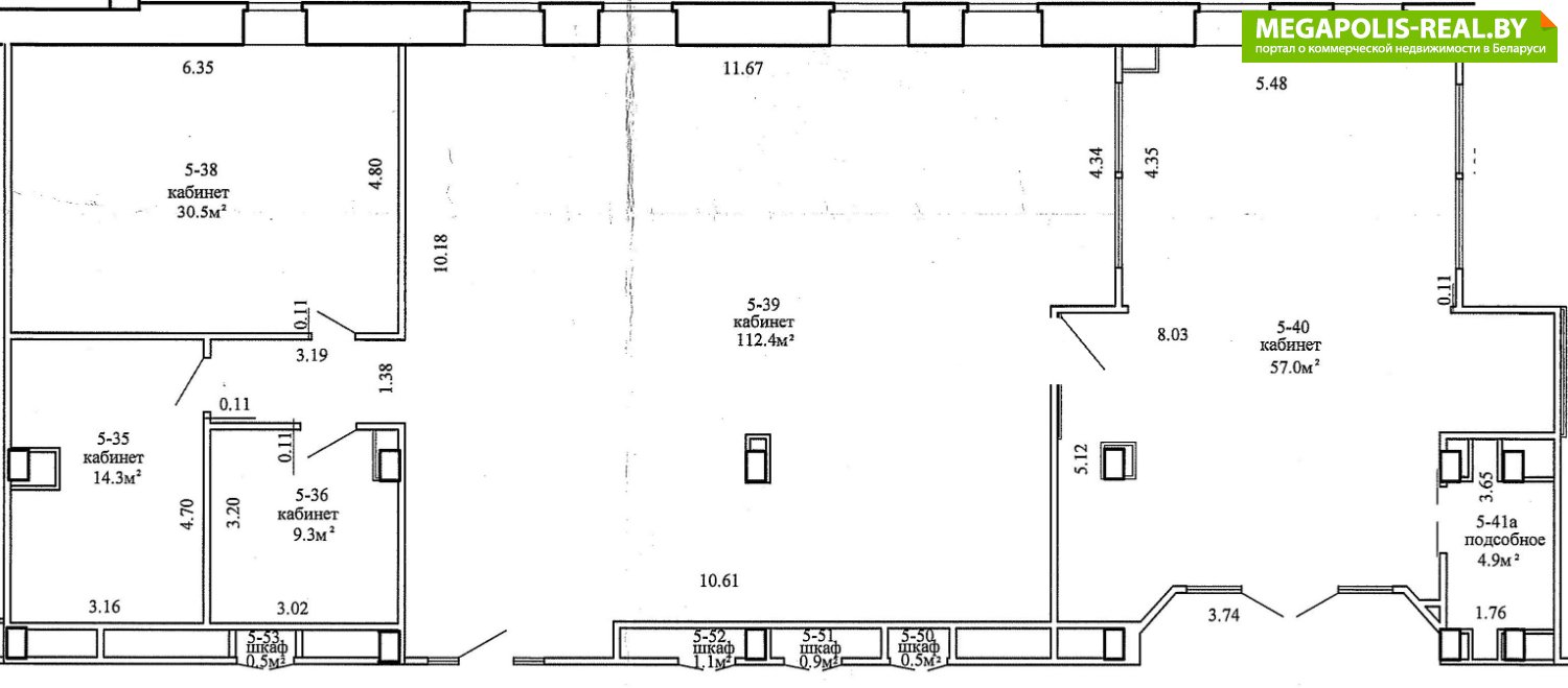
- Площадь: 228 м2
- Ремонт: да
- Интернет: да
- Охрана: да
- Парковка: да
- Режим работы здания: 24/7
- Близость к метро: Институт Культуры
- Питание: магазин
- МФК: Фабрициуса 8Б
- Регион: Минск и район
- Населенный пункт: Минск
- Район: Московский
- Микрорайон: Фабрициуса
- Адрес: ФАБРИЦИУСА 8Б
- Контактное лицо: Ирина
- Телефон: +375 29 151-79-64
- E-mail: fediram@mail.ru
- Телефон: +375 29 151-79-64
- Вид сделки: Предложение
- Цена: с НДС
- Форма собственности: Частная


в избранное































