Аренда: Аренда офиса на Фабрициуса 8Б, пл. 650,00 кв, Минск,
Аренда офиса на 1 этаже БЦ в центре Минска, по ул. Фабрициуса 8б.
Выполнен качественный современный ремонт.
Собственные санузлы, гардеробная, серверная, комната приема пищи, комната отдыха.
Круглосуточная охрана, система контроля и управления доступом, видеонаблюдение, компьютерная сеть, скоростной интернет, приточно-вытяжная вентиляция, кондиционирование в каждом помещении, местная телефонная сеть.
3 отдельных входа.
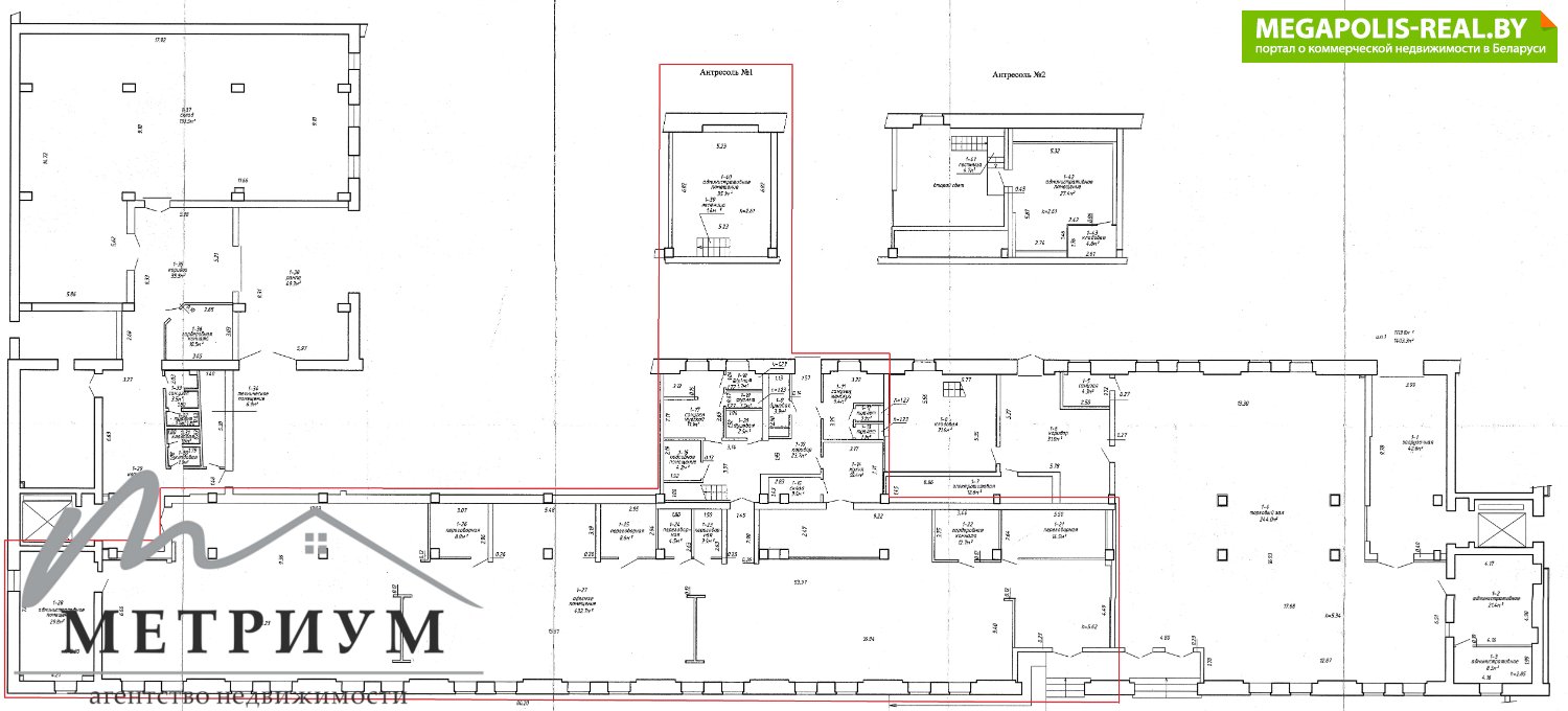
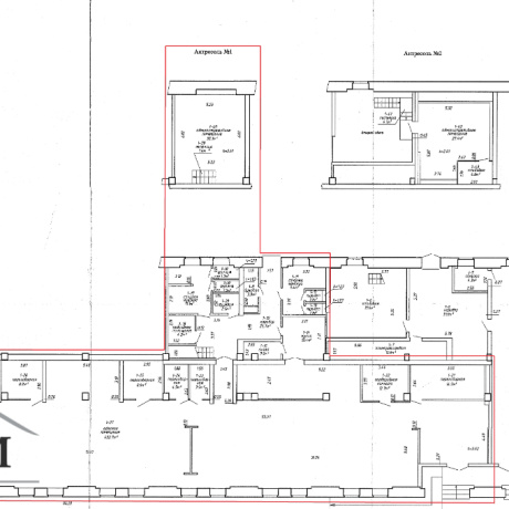
Вам доступны различные площади на разных этаж от 50 до 650 кв. м. и более
Удобное расположение здания:
- остановка общественного транспорта в пяти минутах ходьбы: множество маршрутов, которые позволяют без труда доехать в любую точку города: Автобусы, маршрутные такси;
- близкое расположение станций метро: Институт культуры, Вокзальная, пл. Ленина, пл. Франтишки Богушевича;
- одна остановка до ТЦ Столица, ТЦ Minsk City Mall;
- удобный выезд на пр-т Независимости;
- в 10-ти минутах езды ЖД и Авто Вокзалы, а в 5минутах ходьбы ЖД станция «Институт культуры».
Высоко развитая инфраструктура: точки общественного питания, продуктовые магазины, сферы услуг, банки, медицинские центры и многое другое.
Договор № 311/1а от 31.10.2025
ООО Агентство недвижимости «Метриум»
УНП 193581536
Лицензия № 02240/425, выдана Министерством Юстиции РБ 27.08.2021
- Год постройки: 1962
- Площадь: 650 м2
- Этаж: 1
- Ремонт: хороший
- Интернет: есть
- Режим работы здания: 24/7
- Близость к метро: Институт Культуры
- Питание: магазин
- МФК: Фабрициуса 8Б
- Регион: Минск и район
- Населенный пункт: Минск
- Район: Октябрьский
- Микрорайон: Фабрициуса
- Адрес: ФАБРИЦИУСА 8Б/1
- Контактное лицо: Метриум
- Телефон: +375 29 655-63-59
- E-mail: metrium.real@gmail.com
- Телефон: +375 29 655-63-59
- Вид сделки: Предложение
- Цена: с НДС
- Форма собственности: Частная


в избранное




































