Аренда: Аренда офиса на ул. Грибоедова, 19, 179,8м2, минск,
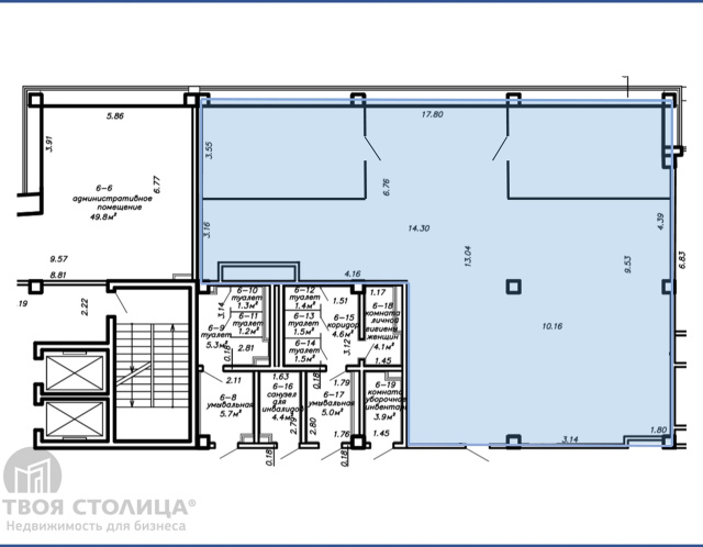
Сдается в аренду офисный блок на 0-м этаже отдельно стоящего здания. Закрытая территория с пропускной системой, зеленая территория и тихий район. Блок с отдельным выходом на улицу и окнами. Внутри выполнена отделка, установлены кондиционеры, выведена вода. Площадь поделена на кабинеты и рабочие зоны.
Договор №316/1а от 06.11.2025
ООО Агентство недвижимости «Метриум»
УНП 193581536
Лицензия № 02240/425, выдана Министерством Юстиции РБ 27.08.2021
- Год постройки: 1961
- Площадь: 179 м2
- Этаж: 1
- Ремонт: хороший
- Интернет: есть
- Парковка: да
- Режим работы здания: 24/7
- Близость к метро: Молодежная
- Питание: магазин
- Регион: Минск и район
- Населенный пункт: минск
- Район: Центральный
- Микрорайон: Тимирязева
- Адрес: ГРИБОЕДОВА 19
- Контактное лицо: Метриум
- Телефон: +375 29 601-70-70
- E-mail: metrium.real@gmail.com
- Телефон: +375 29 601-70-70
- Вид сделки: Предложение
- Цена: без НДС
- Форма собственности: Частная


в избранное

























