Аренда: Аренда помещения 24,9 кв.м. м. возле Институт Культуры, Минск,
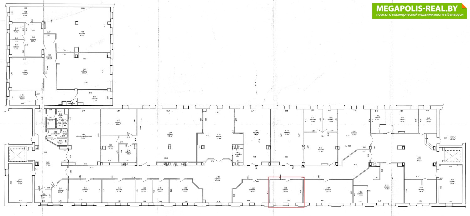
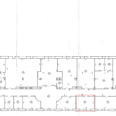
Сдается в аренду помещение общей площадью 24,9 кв.м. в бизнес-центре по адресу: г. Минск, ул. Фабрициуса, 8Б, корп. 1.
Находится на 4 этаже здания.
Высокий потолок.
-------------------------------------------------------------------
Также имеются другие свободные помещения разной площади на этом и других этажах здания. Для получения более подробной информации звоните или пишите в мессенджеры.
-------------------------------------------------------------------
Парковка на прилегающей территории.
Евроремонт, современная отделка, своевременное обслуживание инженерных систем.
Круглосуточная охрана, система контроля и управления доступом (СКУД), видеонаблюдение, компьютерная сеть, скоростной интернет (Деловая сеть, МТС, Айпителком, Космос ТВ), приточно-вытяжная вентиляция, кондиционирование в каждом помещении, местная телефонная сеть (имеется лицензия на оказание услуг связи).
Лифты (пассажирский и грузовой), 2 санузла на этаже.
В здании находится магазин Fix price, также функционирует кафе.
Развитая инфраструктура. В шаговой доступности магазины (Хит, Соседи, Мегатоп, Мила и др.), различные объекты общественного питания (KFC, Штолле, Cofix, БАР #ПП, столовые государственных предприятий и учреждений: Белмедпреппараты, Метрополитен, Институт культуры), банки (ВТБ, БелВэб), объекты сферы бытовых услуг (Дом быта и др.).
Отличное транспортное сообщение, в 5 минутах ходьбы ст.м. «Институт Культуры», «Вокзальная», «Площадь Франтишка Богушевича».
-------------------------------------------------------------------
Арендная плата указана уже с учетом НДС 20%.
В арендную плату включены все эксплуатационные расходы, связанные с обслуживанием здания.
Отдельно подлежат возмещению только фактически потребленные коммунальные услуги (электроэнергия, вода, подогрев воды, отопление в зимний период).
-------------------------------------------------------------------
Объявление размещено от собственника, заключение договора аренды происходит напрямую без участия риэлтерских организаций, соответственно, без дополнительных расходов для будущего арендатора.
-------------------------------------------------------------------
По всем возникшим вопросам звоните по телефону, указанному в объявлении (пишите в любой из мессенджеров).
- Год постройки: 2004
- Площадь: 24 м2
- Этаж: 4
- Ремонт: Евроремонт
- Интернет: Оптоволокно, 5 провайдеров
- Охрана: да
- Парковка: да
- Количество телефонов: Местная телефонная сеть
- Режим работы здания: Круглосуточный доступ
- Близость к метро: Институт Культуры
- Питание: кафе
- МФК: Фабрициуса 8Б
- Регион: Минск и район
- Населенный пункт: Минск
- Район: Московский
- Микрорайон: Фабрициуса
- Адрес: Фабрициуса 8Б
- Собственник, юр. лицо: ООО "Новый офис"
- Контактное лицо: Сергей
- Телефон: +375 29 258-62-80

- E-mail: s.orel@noffice.by
- Телефон: +375 29 258-62-80
- Вид сделки: Предложение
- Цена: с НДС
- Форма собственности: Частная
- Тип договора: прямая аренда
- Стоимость коммунальных услуг
(за все помещение):В отопительный сезон: 9 белорусских рублей за 1 кв.м. руб.В неотопительный сезон: 5 белорусских рублей за 1 кв.м. руб.


в избранное










































