Аренда: Аренда помещения 73,3 кв.м в центре, МЕТРО, Минск,
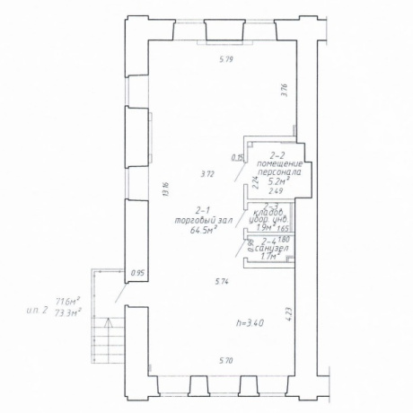
Сдается в аренду помещение площадью 73,3 кв.м на 1-м этаже с отдельным входом.
Помещение с качественным современным ремонтом, полностью готово к эксплуатации без дополнительных вложений. Удобная планировка позволяет эффективно организовать рабочее пространство. Установлен кондиционер, имеется собственный санузел.
Объект расположен в исторической части города с развитой инфраструктурой и активным пешеходным потоком. Удобная транспортная доступность, метро в шаговой доступности, что обеспечивает комфорт как для клиентов, так и для сотрудников.
- Площадь: 73 м2
- Этаж: 1
- Ремонт: да
- Интернет: да
- Режим работы здания: 24/7
- Близость к метро: Октябрьская
- Контактное лицо: Ирина
- Телефон: +375 29 151-79-64
- E-mail: fediram@mail.ru
- Телефон: +375 29 151-79-64
- Вид сделки: Предложение
- Цена: с НДС
- Форма собственности: Частная


в избранное






















