Аренда: Сдается офисное помещение по адресу аг. Колодищи, Тюленина ул., д. 18 к. 1, аг. Колодищи,
Отапливаемый склад с хорошим ремонтом на охраняемой территории, планировка которого позволяет организовать офисные и вспомогательные помещения. При необходимости предоставляется серверная. До конца февраля 2026 г. будет закончена модернизация помещения (установка роллеты и грузового подъёмника).
В арендную плату включены все расходы (НДС, эксплуатационные и коммунальные).
Основные преимущества:
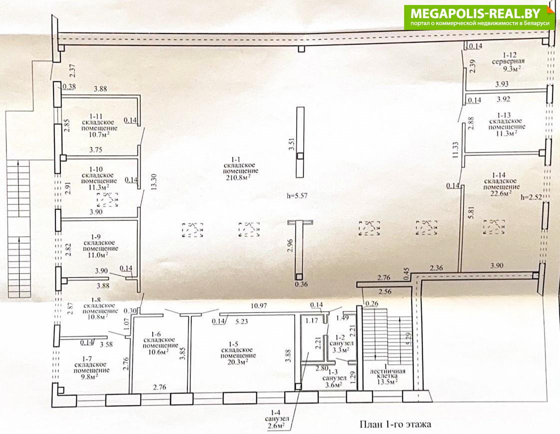
- Площадь 364,7 м2, высота потолка до 5,6 м;
- Отличная планировка, хороший ремонт;
- Электричество: 220 В; 380 В; мощность без ограничений;
- Оптоволокно, компьютерная сеть, серверная, телефонные линии;
- Система кондиционирования;
- Отопление, горячее водоснабжение, сан.узел;
- Приточно-вытяжная вентиляция;
- Грузовой подъёмник 2х1,5 м; ГП=1,2 т;
- Отдельный вход, доступ 24/7;
- Асфальтированная площадка для подъезда, маневрирования транспорта;
- Вместительная парковка, удобный заезд;
- Охрана, видеонаблюдение;
- Остановка общественного транспорта в 200 м;
- Низкая арендная плата.
Идеально подходит для комбинации склад + офис, складского помещения со всеми удобствами.
Организуем показ в удобное для Вас время!
Ответим на все вопросы, рассмотрим Ваши предложения!
Звоните!
Больше объявлений тут: www.instagram.com/garant.arenda
Напишите нам в удобный для Вас мессенджер:
Viber | Telegram | WhatsApp
Ответим на Ваши вопросы, предоставим всю необходимую дополнительную информацию.
ООО «Артель Недвижимость»
УНП 193820882
Лицензия Министерства Юстиции №48250000081913 06.03.2025 г.Договор № 105/2а от 04.02.2026
- Площадь: 365 м2
- Регион: Минск и район
- Населенный пункт: аг. Колодищи
- Район: Минский
- Микрорайон: Колодищи
- Адрес: Тюленина ул. д. 18 к. 1
- Контактное лицо: Гарант Недвижимость
- Телефон: +375 29 213-71-97
- Телефон: +375 29 213-71-97
- Вид сделки: Предложение


в избранное
















































