Аренда: Сдается офисное помещение по адресу Минск, Скорины ул., 2, Минск,
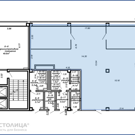
«ТВОЯ СТОЛИЦА · НЕДВИЖИМОСТЬ ДЛЯ БИЗНЕСА» - официальный представитель собственника. Аренда офиса в Бизнес-центре "Абшерон" Идеальное место для Вашего бизнеса, здание имеет очень удобное месторасположение.Есть все необходимые удобства чай, кофе, обеды, минимагазин на входе. Современные помещения: красивый, удобный, современный и функциональный бизнес центр. Офисный блок площадью 182 кв.м., с двумя изолированными помещениями и опен спейсом, а также выделенной зоной приема пищи.Комфортные условия работы: в живописном экологически безопасном районе Минска с удобной транспортной развязкой.Безопасность: администрирование и видеоконтроль 24/7.Удобство для сотрудников и клиентов: предусмотрено более 200 парковочных мест, шаговая доступность ст. м. "Восток". Предоставим по вашему запросу планы свободных помещений и площадей, которые освободятся в ближайшие 1-3 месяца. Организуем осмотр объекта.Согласуем условия договора аренды, период арендных каникул.Все преференции и ставки - от собственника.Арендатор не оплачивает услуги агентства.
- Площадь: 182 м2
- Близость к метро: Восток
- Регион: Минск и район
- Населенный пункт: Минск
- Район: Первомайский
- Адрес: Скорины ул. 2
- Контактное лицо: Андрей Посканной
- Телефон: 8-017 336-77-72
- E-mail: a.poskannoy@t-s.by
- Телефон: 8-017 336-77-72
- Вид сделки: Предложение
- Тип договора: прямая аренда


в избранное























