Продажа / Покупка: Продажа офиса 107,7 м2 ул Богдановича 118, Минск,
Продается офис по хорошей стоимости 165.000$ с НДС в ТЦ Некрасовский, по адресу Максима Богдановича, 118, расположенный на 3 этаже.
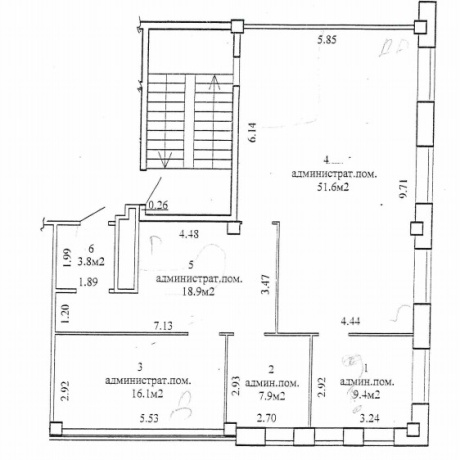
Офис полностью оборудован мебелью с зоной ресепшена, оборудован кухней, переговорной, кабинетом для директора/бухгалтера и один большой кабинет.
Во всех кабинетах установлены кондиционеры.
Парковка возле здания, а также подземный паркинг, который можно дополнительно недорого арендовать.
В ближайшей перспективе ликвидность офиса возрастет благодаря постройки ст.м. Богдановича/ Парк Дружбы народов, которая откроется в 500 метрах от ТЦ Некрасовский.
Покупатель не оплачивает услуги агентства!
- Год постройки: 2007
- Площадь: 107 м2
- Этаж: 3
- Ремонт: хороший
- Интернет: есть
- Парковка: да
- Количество телефонов: 1
- Близость к метро: Академия наук
- Питание: кафе
- МФК: Некрасовский
- Регион: Минск и район
- Населенный пункт: Минск
- Район: Советский
- Микрорайон: Богдановича
- Адрес: Максима Богдановича 118
- Контактное лицо: Отдел коммерческой недвижимости
- Телефон: +375 29 380-85-85
- E-mail: marielt.komm@mail.ru
- Телефон: +375 29 380-85-85
- Вид сделки: Предложение
- Цена: с НДС
- Форма собственности: Частная
- Стоимость коммунальных услуг
(за все помещение):В отопительный сезон: - руб.В неотопительный сезон: - руб.


в избранное















