Аренда: Сдается производственное/складское помещение по адресу г. Минск, Пономаренко ул., д. 43 к. б, г. Минск,
Предлагается в аренду уникальный комплекс «офис + склад», идеально подходящий для компаний, которые ценят эффективность и оптимизацию бизнес-процессов. Расположенный по адресу ул. Пономаренко, 43Б, этот объект позволяет объединить всю вашу деятельность в одной стратегически выгодной локации.
Забудьте о необходимости перемещаться между офисом и складом. Управляйте всем из одного центра!
Что вы получаете:
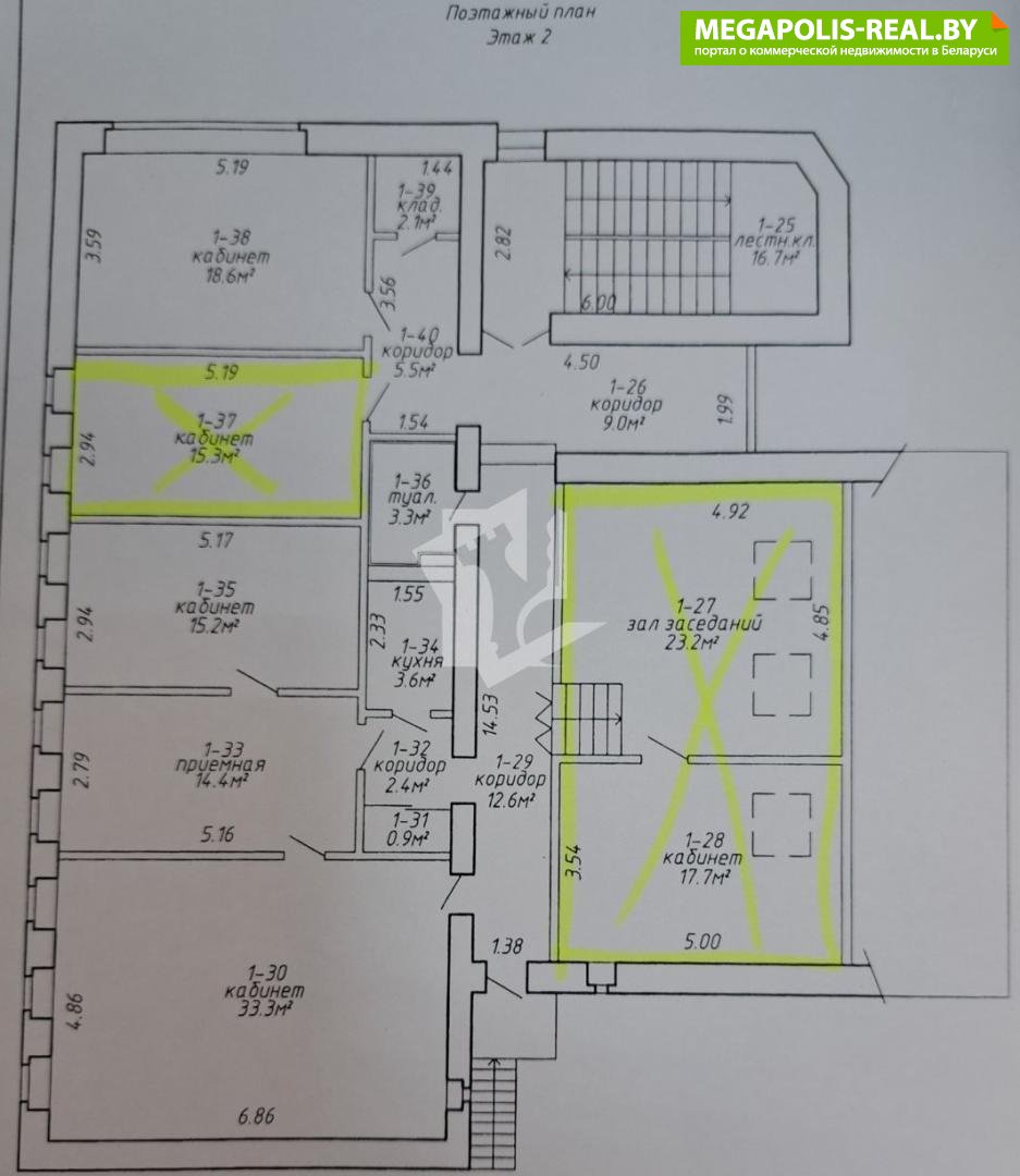
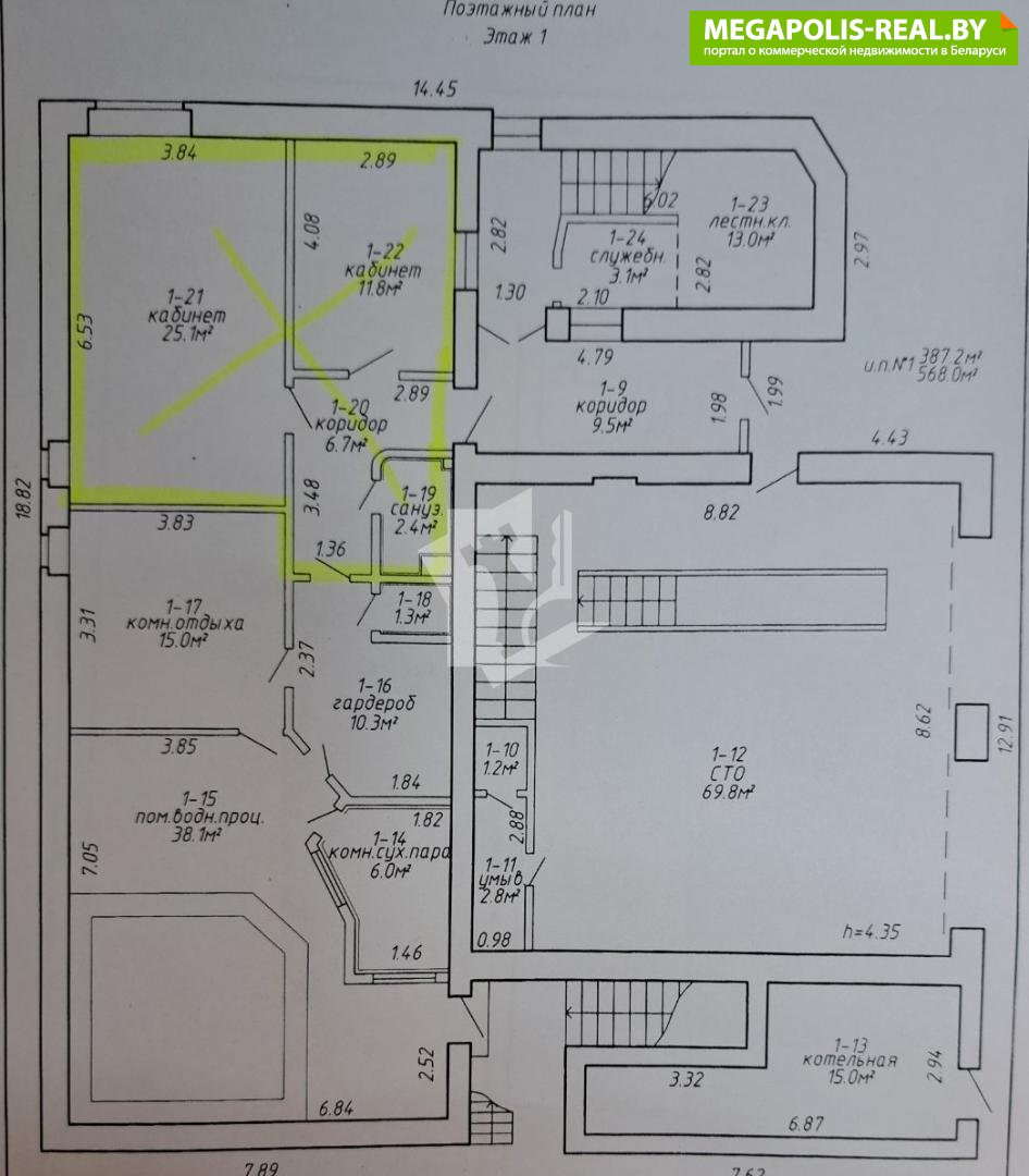
1. Полноценный офис (166,8 м2):
* 7 изолированных кабинетов: Готовая структура для размещения всей компании — кабинеты для руководства, отдел продаж, бухгалтерия, маркетинг, переговорная.
* Масштаб и комфорт: Пространство позволяет комфортно разместить команду из 15-25 человек, создав продуктивную рабочую атмосферу.
* Готовность к работе: Качественный ремонт, все необходимые коммуникации.
2. Функциональный склад (44 м2):
* В шаговой доступности: Складское помещение находится в непосредственной близости от офиса, обеспечивая мгновенный доступ к товарам, образцам или оборудованию.
* Оптимальный размер: 44 м2 — идеальная площадь для хранения товарного запаса интернет-магазина, размещения сервисного центра, оборудования или архива.
* Удобный доступ: Хорошие подъездные пути для разгрузки и погрузки.
Стратегическое расположение:
* Западная часть Минска: Удобный выезд на МКАД и проспект Дзержинского, что обеспечивает превосходную логистику по городу и за его пределы.
* Развитая инфраструктура: Рядом находятся банки, кафе, заправка, СТО и другие объекты, необходимые для комфортной работы.
Этот комплекс — идеальное решение для:
* Торгово-дистрибьюторской компании.
* Интернет-магазина.
* Сервисного центра или ремонтной мастерской.
* Инжиниринговой или строительной компании.
Оптимизируйте свою логистику, сократите издержки и повысьте эффективность команды.
Арендатор не оплачивает услуги агентства.
Организуем показ в удобное для вас время.
Звоните!
Больше объявлений тут: www.instagram.com/garant.arenda
Напишите нам в удобный для Вас мессенджер:
Viber | Telegram | WhatsApp
Ответим на Ваши вопросы, предоставим всю необходимую дополнительную информацию.
ООО «Артель Недвижимость»
УНП 193609339
Лицензия Министерства Юстиции №02240/436 от 03.02.2022 г
Договор №192/2а от 14.10.2025
- Площадь: 167 м2
- Регион: Минск и район
- Населенный пункт: г. Минск
- Микрорайон: Харьковская
- Адрес: Пономаренко ул. д. 43 к. б
- Контактное лицо: Недвижимость
- Телефон: +375 29 209-60-41
- Телефон: +375 29 209-60-41
- Вид сделки: Предложение


в избранное































