Аренда: Аренда помещения 62,5 м2 ул Мстиславца 20, Минск,
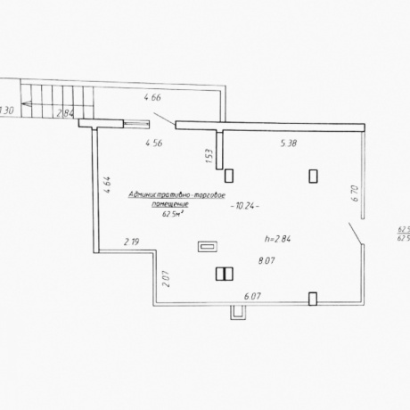
Сдается в аренду многофункциональное помещение площадью 62,5 м2 на первом этаже с двумя отдельными входами, по адресу ул. Мстиславца, 20.
Дом находится в престижном ЖК «Маяк Минска».
Отличная локация практически для любого вида бизнеса:
- 200 м до ст.м. Восток;
- в данной локации большой пешеходный и автомобильный трафик, так как рядом находятся два крупных торгово-развлекательных центра с большим количеством парковочных мест (Дана Молл и Первый Торговый Дом).
Арендатор не оплачивает услуги агентства!
- Год постройки: 2013
- Площадь: 62 м2
- Этаж: 1
- Ремонт: хорошее
- Интернет: есть
- Количество телефонов: 1
- Близость к метро: Восток
- Питание: магазин
- Высота потолка: 2,84
- Мощность электричества: 8,4
- Регион: Минск и район
- Населенный пункт: Минск
- Район: Первомайский
- Микрорайон: Маяк Минска
- Адрес: МСТИСЛАВЦА П. 20
- Контактное лицо: Отдел коммерческой недвижимости
- Телефон: +375 29 380-85-85
- E-mail: marielt.komm@mail.ru
- Телефон: +375 29 380-85-85
- Вид сделки: Предложение
- Цена: без НДС
- Форма собственности: Частная
- Стоимость коммунальных услуг
(за все помещение):В отопительный сезон: - руб.В неотопительный сезон: - руб.


в избранное





