Аренда: Аренда торгового помещения 163 м2 ул Мстиславца 7, Минск,
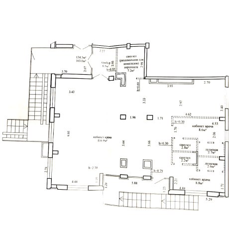
Сдаётся в аренду помещение на 1-м этаже жилого дома по адресу: ул. Мстиславца, 7.
- 2 отдельных входа с доступом 24/7;
- своя приточно-вытяжная вентиляция;
- отопление;
- пожарная сигнализация.
Локация: помещение расположено в крупно населённом ЖК, в 8-ми минутах от ст.м. «Восток».
Помещение отлично подойдёт под магазин, шоурум, сферу услуг, общепит, мед. центр и вет. клинику.
Предоставляются арендные каникулы/льготный период.
Арендатор не оплачивает услуги агентства.
- Год постройки: 2017
- Площадь: 163 м2
- Этаж: 1
- Ремонт: есть
- Интернет: есть
- Парковка: да
- Близость к метро: Восток
- Питание: магазин
- Высота потолка: 2,7
- Мощность электричества: -
- МФК: Маяк Минска
- Регион: Минск и район
- Населенный пункт: Минск
- Район: Первомайский
- Микрорайон: Маяк Минска
- Адрес: МСТИСЛАВЦА П. 7
- Контактное лицо: Александр
- Телефон: +375 29 380-85-85
- E-mail: marielt.komm@mail.ru
- Телефон: +375 29 380-85-85
- Вид сделки: Предложение
- Цена: без НДС
- Форма собственности: Частная
- Стоимость коммунальных услуг
(за все помещение):В отопительный сезон: - руб.В неотопительный сезон: - руб.


в избранное





































