код 26871T
Аренда: Сдается помещение ул. Восточная, 166 площадью 132,7 м2., Минск,
09.03.2026
74
Описание объекта
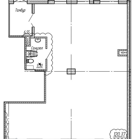
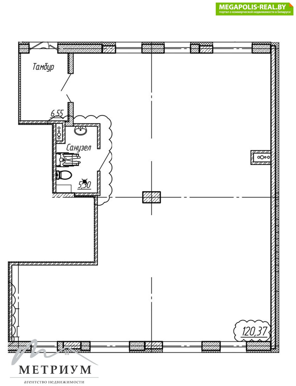
Сдается помещение ул. Восточная, 166 площадью 132,7 м2.
Параметры объекта
- Год постройки: 2025
- Площадь: 132 м2
- Этаж: 1
- Ремонт: есть
- Интернет: есть
- Высота потолка: 3.24
Местоположение
- Регион: Минск и район
- Населенный пункт: Минск
- Район: Советский
- Микрорайон: Леонида Беды
- Адрес: ВОСТОЧНАЯ 166
Контактная информация
Агентство недвижимостиМетриум
УНП: 193581536
Лицензия: 02240/425
Договор: 45/1а от 23.02.2026
- Контактное лицо: Метриум
- Телефон: +375 29 154-07-53
- E-mail: metrium.real@gmail.com
- Телефон: +375 29 154-07-53
5 412 BYN
1 848 $
1 596 €
41 BYN/M2
14,00 $/M2
12,09 €/M2
- Вид сделки: Предложение
- Цена: без НДС
- Форма собственности: Частная
Поделиться в соцсетях


в избранное






























