Аренда: Сдается торговое помещение по адресу г. Минск, Братская ул., д. 9, г. Минск,
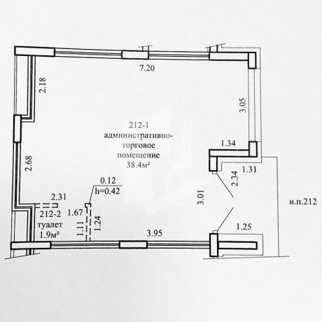
По адресу ул. Братская, 9-212 сдается в аренду помещение в густонаселенном жилом комплексе, площадью 40,3 м2, на первом этаже. Напряжение 380, мощность 7. Есть свой санузел. Перспективная локация для бизнеса. Долгосрочная аренда с возможностью арендных каникул на 2 месяца, высокие потолки, парковочные места. Рабочее место объекта в жилом доме до 23:00, по необходимости арендатор может в любое время зайти.
Если не подойдет данное помещение, мы подберем другое.
Напишите нам в удобный для Вас мессенджер:
Viber | Telegram | WhatsApp
Ответим на Ваши вопросы, предоставим всю необходимую дополнительную информацию.
ООО «Артель Недвижимость»
УНП 193820882
Лицензия Министерства Юстиции №48250000081913 06.03.2025 г.
Договор №34/2а от 22.09.2025г.
- Площадь: 40 м2
- Этаж: 1
- Ремонт: отделка
- Парковка: да
- Режим работы здания: 24/7
- Близость к метро: Аэродромная
- Питание: магазин
- Вентиляция: есть
- Вход в помещение: Отдельный
- МФК: Минск Мир (Minsk World)
- Регион: Минск и район
- Населенный пункт: г. Минск
- Район: Октябрьский
- Микрорайон: Аэродромная
- Адрес: Братская ул. д. 9
- Точки притяжения посетителей возле объекта: Банковское отделение, Остановка общественного транспорта, Продуктовый магазин
- Контактное лицо: Недвижимость
- Телефон: +375 29 816-65-57
- Телефон: +375 29 816-65-57
- Вид сделки: Предложение


в избранное
































































