Аренда: Сдается торговое помещение по адресу г. Минск, Лучины ул., д. 5, г. Минск,
Офисные помещения, расположенные в презентабельном, новом бизнес-центре «Стратег», имеющее качественный ремонт и инженерные коммуникации, создающие комфортные условия для работы и роста Вашего бизнеса, а современный дизайн и представительный внешний вид подчеркнут престижность и статус Вашей компании.
Актуальные площади:4 этаж: 125,4 м2
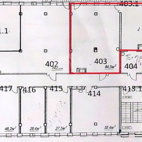
3 этаж: 112,4 м2, 154,2 м2
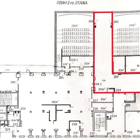
2 этаж: 203,8 м2
Также предлагаются: 37,4 м2; 48,2 м2; 55,1 м2; 78,8 м2; 576,5 м2.
Основные преимущества:
- Приточно-вытяжная вентиляция, система кондиционирования;
- Собственная котельная (отсутствие перебоев горячей воды, отопление сразу «когда стало холодно»), с/у, водоснабжение в помещении;
- Пожарная сигнализация;
- Компьютерная сеть, серверная, оптоволокно;
- Видеонаблюдение;
- Круглосуточный доступ, СКУД;
- Презентабельный БЦ «Стратег»;
- Установка рекламных конструкций на фасаде;
- Развитая инфраструктура, хорошая транспортная доступность;
- Вместительная парковка, удобный подъезд.
Это помещение станет отличным выбором для тех, кто ценит функциональность, надежность и презентабельность своего бизнеса.
Арендатор не оплачивает услуги агентства.
Хотите посмотреть объект и обсудить детали? Мы организуем показ в любое удобное для вас время, рассмотрим Ваши предложения и ответим на интересующие вопросы. Звоните!
Вы можете обратиться к специалисту, который занимается данным объектом, по вопросу подбора помещений коммерческого назначения, а также с просьбой сдать в аренду или продать Ваш объект недвижимости.
Больше объявлений тут: www.instagram.com/garant.arenda
Напишите нам в удобный для Вас мессенджер:
Viber | Telegram | WhatsApp
Ответим на Ваши вопросы, предоставим всю необходимую дополнительную информацию.
ООО «Артель Недвижимость»
УНП 193820882
Лицензия Министерства Юстиции №48250000081913 06.03.2025 г.
Договор № 209/2а от 17.10.2025
- Площадь: 204 м2
- Регион: Минск и район
- Населенный пункт: г. Минск
- Адрес: Лучины ул. д. 5
- Контактное лицо: Недвижимость
- Телефон: +375 29 213-71-97
- Телефон: +375 29 213-71-97
- Вид сделки: Предложение


в избранное














































