Аренда: Сдается торговое помещение по адресу г. Минск, Савицкого ул., д. 23, г. Минск,
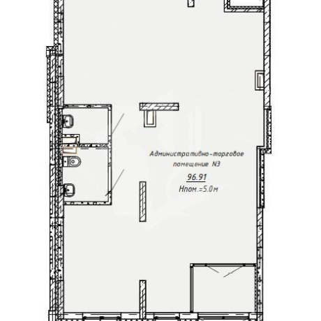
Помещение95.9 м2 в новостройке 2025 г. на Савицкого, 23.
· Локация: Окна на перекресток и во двор. 5 минут пешком до станции метро «Аэродромная». Высокий пешеходный и автомобильный трафик.
· Разрешение: Можно открыть общепит (кофейня, ресторан, пекарня).
· Коммуникации: Свой счётчик 380 В, принудительная вентиляция, канальная приточка, пожарная сигнализация.
· Условия: Потолки 5 м, первый этаж, отдельный вход, доступ 24/7, большие арендные каникулы.
Идеально под: офис, розничный магазин, салон услуг, шоу-рум.
Больше объявлений тут: www.instagram.com/garant.arenda
Напишите нам в удобный для Вас мессенджер:
Viber | Telegram | WhatsApp
Ответим на Ваши вопросы, предоставим всю необходимую дополнительную информацию.
ООО «Артель Недвижимость»
УНП 193820882
Лицензия Министерства Юстиции №48250000081913 06.03.2025 г.
Договор №33/2а 15.01.26
- Площадь: 96 м2
- Регион: Минск и район
- Населенный пункт: г. Минск
- Адрес: Савицкого ул. д. 23
- Контактное лицо: Недвижимость
- Телефон: +375 29 839-60-58
- Телефон: +375 29 839-60-58
- Вид сделки: Предложение


в избранное


























































