Аренда: Сдается торговое помещение по адресу г. Минск, Жуковского ул., д. 11 к. А, г. Минск,
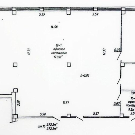
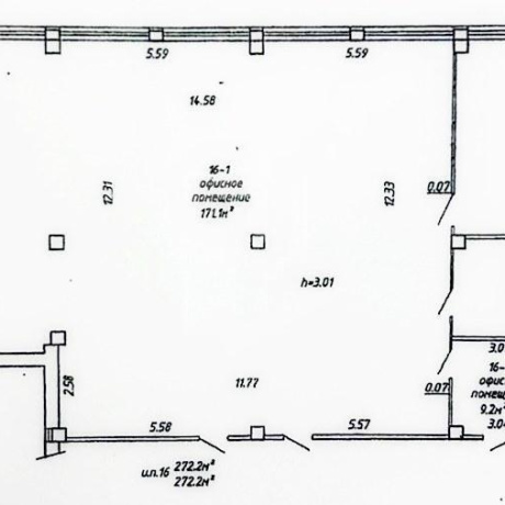
Аренда офисного помещения 273 м в Бизнес центре по адресу ул. Жуковского 11А.
Офисное помещение находится на 6 этаже. (Возможна частичная сдача)Есть парковка, пространство разделено на отдельные, изолированные кабинеты, переговорные комнаты, гардероб, кухню. Сан узлы на этаже. Арендные каникулы возможны. Есть возможность размещения наружной рекламы на фасаде. Доступ 24/7. Помещение готово к переезду.
На 1-этаже здания магазин «Соседи», аптека и фитнес-клуб. Рядом множество кафе, продовольственных и промышленных магазинов. Хорошая транспортная доступность.Офисное помещение находится на 6 этаже. Есть парковка, пространство разделено на отдельные, изолированные кабинеты, переговорные комнаты, гардероб, кухню. Сан узлы на этаже. Арендные каникулы возможны. Есть возможность размещения наружной рекламы на фасаде. Доступ 24/7. Помещение готово к переезду.
- приточно-вытяжная вентиляция; - кондиционер;- разведены электрические и слаботочные сети;- скоростной интернет;- видеонаблюдение;- два бесшумных скоростных лифта "Kone";- система СКУД (систем контроля доступа).
Больше объявлений тут: www.instagram.com/garant.arenda
Напишите нам в удобный для Вас мессенджер:
Viber | Telegram | WhatsApp
Ответим на Ваши вопросы, предоставим всю необходимую дополнительную информацию.
ООО «Артель Недвижимость»
УНП 193820882
Лицензия Министерства Юстиции №48250000081913 06.03.2025 г.
Договор № 232/2а от 24.10.2025
- Площадь: 272 м2
- Ремонт: есть
- Интернет: есть
- Охрана: да
- Парковка: да
- Режим работы здания: 24/7
- Близость к метро: Ковальская Слобода
- Питание: магазин
- Регион: Минск и район
- Населенный пункт: г. Минск
- Район: Октябрьский
- Микрорайон: Воронянского, Жуковского
- Адрес: Жуковского ул. д. 11 к. А
- Контактное лицо: Недвижимость
- Телефон: +375 29 816-65-57
- Телефон: +375 29 816-65-57
- Вид сделки: Предложение


в избранное



































