код 26873T
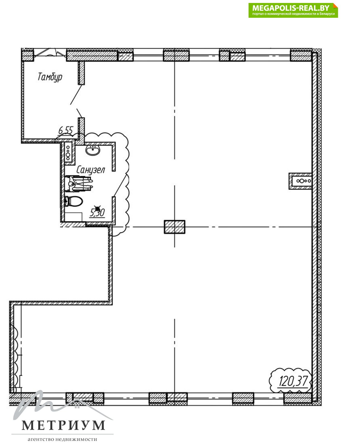
Продажа / покупка: Продается коммерческое помещение 132,7 м2. ул. Восточная, 166, Минск,
09.03.2026
66
Описание объекта
Продается коммерческое помещение 132,7 м2. ул. Восточная, 166
Параметры объекта
- Год постройки: 2025
- Площадь: 132 м2
- Этаж: 1
- Ремонт: есть
- Интернет: есть
- Высота потолка: 3.24
Местоположение
- Регион: Минск и район
- Населенный пункт: Минск
- Район: Советский
- Микрорайон: Зеленый луг
- Адрес: ВОСТОЧНАЯ 166
Финансовые показатели объекта
Контактная информация
Агентство недвижимостиМетриум
УНП: 193581536
Лицензия: 02240/425
Договор: 97/1 от 23.02.2026
- Контактное лицо: Метриум
- Телефон: +375 29 154-07-53
- E-mail: metrium.real@gmail.com
- Телефон: +375 29 154-07-53
740 124 BYN
250 800 $
218 216 €
5 607 BYN/M2
1 900,00 $/M2
1 653,15 €/M2
- Вид сделки: Предложение
- Цена: без НДС
- Форма собственности: Частная
Поделиться в соцсетях


в избранное






























