Продается квартира по адресу Савицкого ул. д. 23, г. Минск
- Количество комнат: однокомнатная
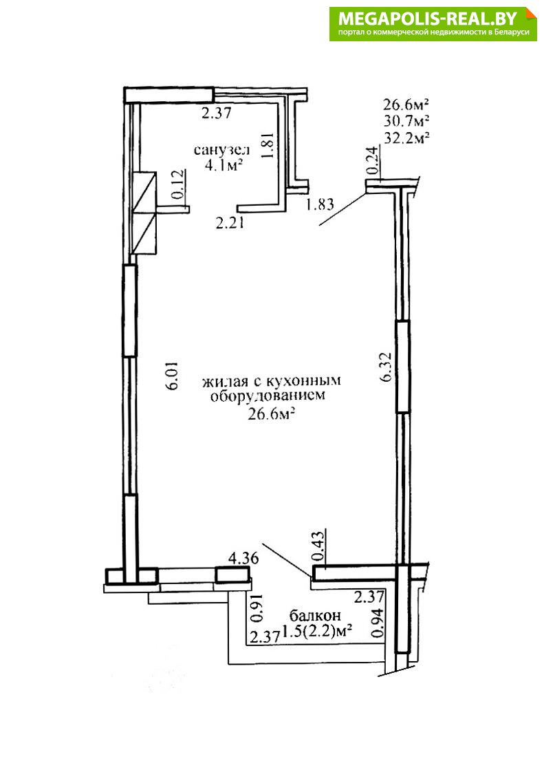
- Этаж: 6 этаж из 13
- Санузел: раздельный
- Планировка: новостройка
- Год постройки: 2025
Продается квартира в каркасно-блочном доме 2025 г.п.
Площадь 32,2м2 по СНБ свободной планировки в квартале "Центральный парк", ЖК «Minsk World»
Ул. Савицкого, д.23 на 6 этаже 13-го дома
Просторное лобби, сквозные подъезды, пандусы, эксклюзивный дизайн, гранитные полы, гранитные порталы лифтов, художественное оформление стен;
стойка рецепции для консьержа,
туалетная комната с пеленальным столиком.
Удобное месторасположение.
Преимущества комплекса:
Международный финансовый центр;
Большой торгово-развлекательный центр;
Зрелищно-спортивный центр;
Театр;
Магазины, кафе, рестораны, кинотеатры;
Городской парк - «зеленое» сердце проекта;
Зеленые бульвары;
Школы, детские сады;
Поликлиники, аптеки;
И др. объекты культурно-бытового обслуживания назначения
пересечение 2-х линий метрополитена, 2 станции метро;
остановки общественного транспорта;
велодорожки и велополосы вдоль улиц;
парковки, стоянки для автомобилей, велопарковки.
Преимущество квартала:
квартал расположен в центральной части застройки;
в квартале запроектирован городом центральный парк
детские площадки;
спортивные площадки;
площадки отдыха;
по наружному контуру квартала – парковки для автомобилей;
с восточной стороны квартала – Международный финансовый центр, торговый центр;
в прилегающих кварталах с южной стороны - детский сад с бассейном, с юго-восточной стороны – школа;
в квартале и прилегающих к нему кварталах расположены объекты культурно-бытового обслуживания.
Рядом остановочный пункт общественного транспорта,
Максимально удобно для Вас мы поможем решить Вашу ситуацию.
Подарите себе уникальную возможность уже сейчас приобрести квартиру, которая будет соответствовать Вашим желаниям. Для чего бы Вы ее не купили: для проживания, для сдачи в аренду, как инвестиции – это идеальный вариант вложения средств.
Общая площадь указана по СНБ.
Лицензия: №02240/362 МЮ РБ, 31.07.2018
- Регион: Минск и район
- Населенный пункт: г. Минск
- Жилой комплекс: Минск Мир
- Микрорайон: Минск Мир
- Адрес: Савицкого ул. д. 23
- Метро: Аэродромная
- Район: Октябрьский
- Контактное лицо: Фаттория Плюс
- Телефон: +375 29 122-00-88
- Телефон: +375 29 122-00-88
- Продажа квартиры


в избранное





















































































































