Продается квартира по адресу Мира просп. д. 1, г. Минск
- Количество комнат: двухкомнатная
- Этаж: 7 этаж из 24
- Санузел: раздельный
- Планировка: новостройка
- Год постройки: 2020
Продается просторная квартира с современным ремонтом.
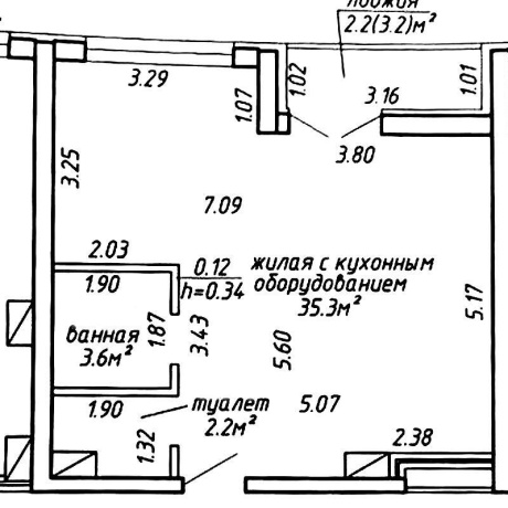
В продаже просторная двухкомнатная квартира с хорошей планировкой в доме «Волна», многофункционального современного ЖК Minsk World, квартал Эмиратс», в каркасно-блочном доме.
В квартире выполнен современный и качественный ремонт. Площадь квартиры по СНБ 43.3 кв.м, располагается на 7 этаже 24 этажного дома.*Вокруг развитая инфраструктура: рядом станция метро «Аэродромная», один из крупнейших торгово-развлекательных центров - Avia Mall. В самом доме большое количество различных магазинов, кофейни и другие объекты социальной значимости. *Удобное месторасположение, можно быстро добраться в любую точку города. *До взрослой и детской поликлиники можно дойти менее чем за 10 минут. *Детский сад и школа находятся в шаговой доступности от дома!
Приглашаем на просмотр.
Продадим Вашу недвижимость для покупки этой
Ответим на все интересующие вопросы, согласуем удобное время показа!
Консультация и помощь в подборе программы кредитования!
Полное юридическое сопровождение сделки гарантируем!
Лицензия: №02240/362 МЮ РБ, 31.07.2018
- Регион: Минск и район
- Населенный пункт: г. Минск
- Жилой комплекс: Минск Мир
- Микрорайон: Минск Мир
- Адрес: Мира просп. д. 1
- Метро: Аэродромная
- Район: Октябрьский
- Контактное лицо: Фаттория Плюс
- Телефон: +375 29 122-00-88
- Телефон: +375 29 122-00-88
- Продажа квартиры


в избранное



























































































































































