Продается квартира по адресу Авакяна ул. д. 24, г. Минск
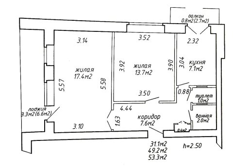
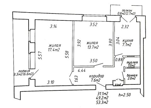
- Количество комнат: четырехкомнатная
- Этаж: 6 этаж из 6
- Санузел: раздельный
- Год постройки: 1994
Эксклюзивное предложение! Просторная квартира с чердаком 53.6 м2
Малоэтажный кирпичный дом 1994 года постройки. Высота потолков 2.63 м.
Шикарная планировка: 3 просторные комнаты + 2 этаж квартиры (чердак 53.6 м2), 2 санузла, 3 лоджии и 1 балкон.
Общая площадь квартиры по СНБ 136.2 м2.
Площадь чердака (53.6 м2) не входит в общую площадь квартиры.
Квартира в аккуратном состоянии.
В шаговой доступности есть все необходимое для комфортного проживания: школы, детские сады, различные магазины, спортивные и медицинские учреждения, объекты сервисного обслуживания и досуга.
Отличное транспортное сообщение: в 7-ми минутах ходьбы от дома станция метро «Ковальская слобода».
Чистая продажа! Показы в удобное для Вас время!
- Регион: Минск и район
- Населенный пункт: г. Минск
- Микрорайон: Чкаловский
- Адрес: Авакяна ул. д. 24
- Метро: Ковальская Слобода
- Район: Октябрьский
- Контактное лицо: Павел
- Телефон: +375 29 560-55-11
- Телефон: +375 29 560-55-11
- Продажа квартиры


в избранное






























































































