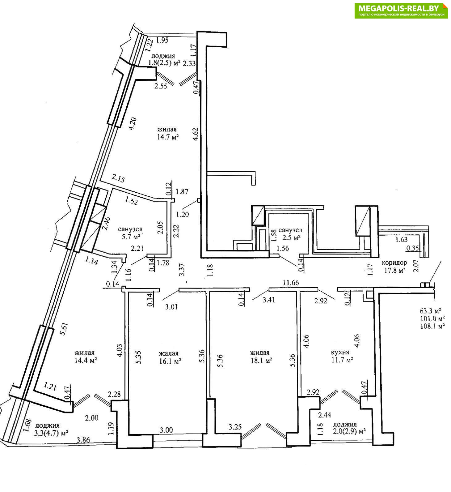
Продается квартира по адресу Кропоткина ул. д. 61, г. Минск
- Количество комнат: четырехкомнатная
- Этаж: 2 этаж из 15
- Санузел: раздельный
- Планировка: новостройка
- Год постройки: 2023
Продается 4-комнатная квартира в ЖК "Фарфоровый" в центре Минска.
Дом 2023 года с вентилируемым фасадом.
Характеристики:
Квартира находится на 2-м этаже 15-ти этажного дома.
Площадь по СНБ 108.1 м2., внутри периметра квартиры несущие стены отсутствуют – можно совместить во своему желанию кухню с соседней комнатой или демонтировать любые другие перегородки.
Отделка – линолеум, плитка в санузлах, обои, потолки – покрашены, вентиляция с фильтрацией, регулируемые радиаторы, металлическая дверь.
Наличие санузлов в лобби. Два лифта.
Уникальная стильная оригинальная архитектура — комплекс строится по индивидуальным проектам зданий, квартир, лобби, мест общего пользования, благоустройства территории, бульвара, выполненным известными архитекторами, градостроителями, дизайнерами.
Уникальные турецкие лифты HAS с обзорной стеной, через которую открывается панорама комплекса и всего города. Преимущества лифтового оборудования HAS: низкий уровень шума, плавность хода, визуальная эстетика, а также изготовление кабины лифта под любые размеры лифтовой шахты.
Комплекс укомплектован собственным социальным пакетом: детский сад, СПА-центр, кафе, фитнес, встроенные помещения с услугами для жильцов комплекса (кофейня, салон красоты, косметология, стоматология, тренажерный зал и прочие), бизнес-центры, продуктовый магазин, 4 подземных паркинга общей вместимостью 760 машиномест, из которых обзорные лифты с панорамными видами поднимают прямо в квартиры и офисы, благоустроенный пешеходный бульвар внутри комплекса.
Техническое обеспечение дополнительных возможностей комфортного уровня обслуживания и безопасности (запас ТУ для зарядки электромобилей, возможность подключения систем видеонаблюдения и т.п.).
Обратитесь к нам для получения дополнительной информации или для организации просмотра. Не упустите возможность купить выгодно эту квартиру!
Общая площадь указана по СНБ.
Лицензия: №02240/362 МЮ РБ, 31.07.2018
- Регион: Минск и район
- Населенный пункт: г. Минск
- Жилой комплекс: Фарфоровый
- Микрорайон: Каховская
- Адрес: Кропоткина ул. д. 61
- Метро: Площадь Якуба Коласа
- Район: Центральный
- Контактное лицо: Юлия
- Телефон: +375 29 628-14-08
- Телефон: +375 29 628-14-08
- Продажа квартиры


в избранное





















































































