код 21322S
Продажа / покупка: Продается Производственное/Складское помещение в СЭЗ Минск, мкр-н Шабаны. , Минск,
08.01.2026
205
Описание объекта
Продажа Производственно-Складского помещения. СЭЗ Минск, мкр-н Шабаны.
- Резидентам СЭЗ Минск законодательно предусмотрены специальные условия ведения бизнеса.
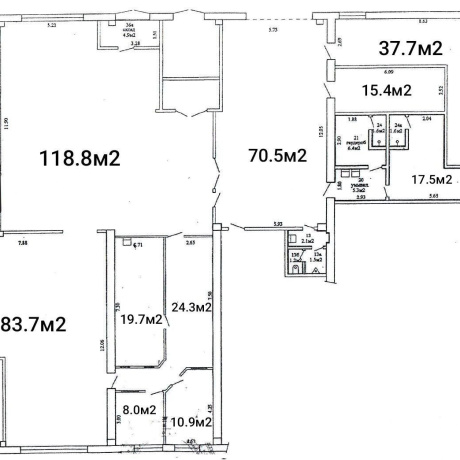
- Производственно-Складское помещение 431,1м2. +14.5м2
- Функционал: производство + склад + офис.
- Имеется два входа в помещение.
- Высота въездных ворот в помещение – 4м., установлены роллеты. Высота помещений 3-6м.
- Полы бетонные наливные с допустимой нагрузкой - 4тонн на м2.
- Коммуникации: электричество 220/380В; выделенная мощность 120кВт-220кВт;
- отопление; водоснабжение; канализация; промышленная вытяжка.
- В помещении выделены зоны : производства, склада, офиса, вспомогательных, санузла. Состояние удовлетворительное.
- Помещение подходит для размещения: производства; сборки/упаковки товара ; сервисного центра; склада и офиса.
- Просторная парковка возле здания.
- Ограждение по периметру здания. Круглосуточный пост охраны .
- Удобные подъездные пути с МКАД. метро «Могилёвская», Партизанский пр-т -5 минут.
- Для получения дополнительной информации и организации просмотра, пожалуйста, свяжитесь с нами по указанным контактам.
- ___________
ООО "Агентство недвижимости Доминанта"
УНП: 193771826 Лицензия: 02240/499 МЮ РБ, 28.01.2025
Договор РУ №3/4 от 25.11.2025
Подробнее...Параметры объекта
- Год постройки: 2003
- Площадь: 445 м2
- Назначение: Производственно-складское
- Класс склада: Класс B
- Высота потолков: 6
- Пол: наливной
- Нагрузка на пол: 3-4 тонны/м2
- Вода/канализация: да
- Мощность электричества: 120-220
- Отопление: да
- Вентиляция: да
- Подъездные пути: асфальт
- Парковка: да
- Охрана: да
- Режим работы здания: 24/7
- Интернет: оптоволокно
- Видеонаблюдение: да
Финансовые показатели объекта
Контактная информация
- Контактное лицо: Валентина
- Телефон: +375 29 669-78-70

- E-mail: zah.vp@yandex.by
- Телефон: +375 29 669-78-70
1 001 695 BYN
351 550 $
294 029 €
2 251 BYN/M2
790,00 $/M2
660,74 €/M2
- Вид сделки: Предложение
- Цена: без НДС
- Форма собственности: Частная
- Стоимость коммунальных услуг
(за все помещение):В отопительный сезон: -- руб.В неотопительный сезон: - руб.
Поделиться в соцсетях


в избранное







































































