Продажа / покупка: Продажа склад холодильник морозильник 2700М - Хатежино, Хатежино,
Продажа отдельно-стоящего склада-холодильника глубокой заморозки с офисными помещениями
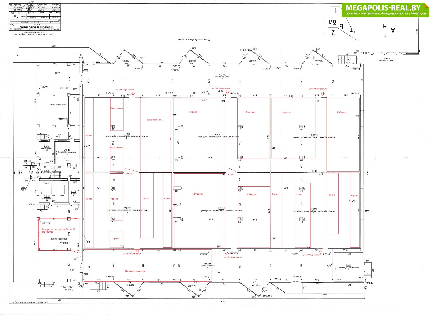
Общая площадь: 2695 м²
Земельный участок: 0,77 га
Характеристики объекта:
- Назначение: Хранение замороженной продукции при температуре до -25°C.
- Морозильные камеры: 6 камер с выходом в холодильный коридор и зону отгрузки/приемки.
- Объем хранения: 2260 паллетомест, установлены набивные стеллажи для эффективного использования пространства.
- Высота потолков: 5,8 м в морозильных камерах.
- Рампы: 8 крытых рамп для погрузки/разгрузки товаров, оснащены автоматическими воротами с докшелтерами для удобства и безопасности работы.
- Коммуникации: Все необходимые инженерные коммуникации для эффективной эксплуатации объекта.
Преимущества объекта:
- Оптимальные условия хранения: Поддержка температуры до -25°C, идеальная для замороженной продукции.
- Современные решения: Стеллажная система для безопасного и эффективного хранения товаров.
- Удобная логистика: 8 крытых рамп обеспечивают быстрый процесс приема и отправки продукции, что улучшает логистику.
- Эффективное использование пространства: 2260 паллетомест при компактных размерах склада, максимизация хранения при минимальных затратах площади.
- Подходит для сертификации продукции на Российский рынок.
Этот объект идеально подходит для бизнеса, работающего с замороженной продукцией, и предоставляет все условия для эффективного хранения и логистики.
Подробнее...- Площадь: 2700 м2
- Земельный участок: 0,77 га
- Назначение: склад, склад морозильник, холодильник
- Офисные площади: да
- Этажность здания: 1
- Высота потолков: 5,8м
- Пол: наливной
- Вода/канализация: да
- Мощность электричества: 600 кват
- Отопление: да
- Вентиляция: Да
- Подъездные пути: асфальт
- Рампа: да
- Режим работы здания: 24/7
- Интернет: оптика
- Регион: Минск и район
- Населенный пункт: Хатежино
- Район: Минский
- Направление от МКАД: Хатежино
- Адрес: Южнее п Хатежино 22
- Контактное лицо: Юлия
- Телефон: +375 29 632-82-60

- E-mail: jullia@tut.by
- Телефон: +375 29 632-82-60
- Вид сделки: Предложение
- Цена: с НДС
- Форма собственности: Частная
- Тип договора: продажа объекта
- Стоимость коммунальных услуг
(за все помещение):В отопительный сезон: по счетчику руб.В неотопительный сезон: по счетчику руб.


в избранное





























