Продается квартира по адресу Кальварийская ул. д. 16, г. Минск
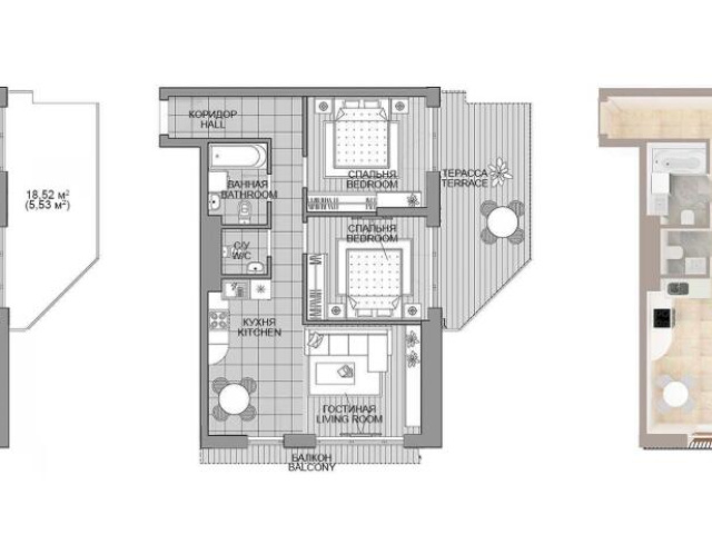
- Количество комнат: трехкомнатная
- Этаж: 14 этаж из 30
- Санузел: раздельный
- Планировка: повышенной комфортности
- Год постройки: 2015
Дом повышенной комфортности ЖК Парус в центре Минска.Просторная квартира, готова к проживанию. Свободная планировка зонируется открытыми стеллажами. Новый собственник под свой вкус и бюджет может создать уникальное, индивидуальное жилье без затрат на перепланировку и ее согласование. Для жильцов доступна развитая инфраструктура, все необходимое в шаговой доступности от дома.- подземный паркинг- закрытая дворовая территория с парковочными местами, въезд - под шлагбаум, - бесшумных лифты OTIS (3 шт.).- охраняемая территория с круглосуточным видеонаблюдением и консьержем- панорамное остекление с шикарной панорамой на город (особенно в вечернее время)-высокие потолки - система индивидуальной приточно-вытяжной вентиляции и централизованное кондиционирование воздуха с автоматическим регулированием температуры...В комплексе есть все для удобства и приятной жизни жителей: в постройке использованы энергосберегающие технологии, воздух фильтруется перед подачей в помещения.Две линии метро в пешей доступности (ст. Фрунзенская, Молодежная).Возможен торг. Быстрый выход на сделку.
Площадь по СНБ 100.1 м.кв.
Лицензия: №02240/362 от 31.07.2018, Министерство юстиции РБ
- Регион: Минск и район
- Населенный пункт: г. Минск
- Жилой комплекс: Парус
- Микрорайон: Пушкина
- Адрес: Кальварийская ул. д. 16
- Метро: Фрунзенская/Юбилейная площадь
- Район: Фрунзенский
- Контактное лицо: Александр
- Телефон: +375 29 680-30-89
- Телефон: +375 29 680-30-89
- Продажа квартиры


в избранное









































































