Аренда: Сдается производственное/складское помещение по адресу г. Минск, Ленина ул., д. 50, г. Минск,
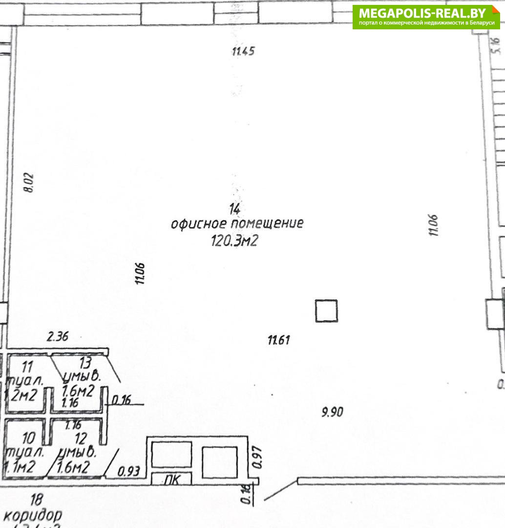
Офисное помещение 125,8 м2 в бизнес-центре, который находится в центре города, с хорошим ремонтом и инженерными коммуникациями, создающие комфортные условия для работы и роста Вашего бизнеса.При аренде предоставляется 1 машино-место в подземном паркинге бесплатно,вдобавок к паркингу БЦ имеетвместительную парковку на своей территории.
Основные преимущества:
- Приточно-вытяжная вентиляция;
- Система кондиционирования;
- Центральное отопление, водоснабжение, 2 собственных с/у;
- Электрическая мощность: 24 кВт, 220 В;
- Компьютерная сеть;
- Оптоволокно;
- Пожарная сигнализация;
- Охрана, видеонаблюдение;
- Круглосуточный доступ, видеодомофон;
- Центр города, развитая инфраструктура;
- Метро «Первомайская» (5 мин), остановки ОТ;
- Подземный паркинг, вместительная наземная парковка, удобный подъезд;
- Арендные каникулы, возможно сделать ремонт под Ваш запрос.
Это помещение станет отличным выбором для тех, кто ценит функциональность, надежность и стремится обеспечить сотрудникам лучшие условия для работы, а расположение в центре города обеспечит престиж Вашей организации.
Арендатор не оплачивает услуги агентства.
Хотите посмотреть объект и обсудить детали? Мы организуем показ в любое удобное для вас время, рассмотрим Ваши предложения и ответить на интересующие вопросы. Звоните!Больше объявлений тут: www.instagram.com/garant.arenda
Напишите нам в удобный для Вас мессенджер:
Viber | Telegram | WhatsApp
Ответим на Ваши вопросы, предоставим всю необходимую дополнительную информацию.
ООО «Артель Недвижимость»
УНП 193820882
Лицензия Министерства Юстиции №48250000081913 06.03.2025 г.
Договор №58/2a от 26.01.2026
- Площадь: 126 м2
- Мощность электричества: 24 кВт
- Интернет: есть
- Регион: Минск и район
- Населенный пункт: г. Минск
- Район: Ленинский
- Микрорайон: Пролетарская
- Направление от МКАД: В черте Минска
- Адрес: Ленина ул. д. 50
- Контактное лицо: Гарант Недвижимость
- Телефон: +375 29 213-71-97
- Телефон: +375 29 213-71-97
- Вид сделки: Предложение


в избранное
























