Продажа / покупка: Продается производственное/складское помещение по адресу г. Минск, Победителей просп., д. 27, г. Минск,
Продается коммерческое помещение в центре города по адресу: пр-т Победителей, 27. Это предложение идеально подходит как для инвесторов, так и для предпринимателей, стремящихся развивать свой бизнес в удачном месте.
Основные характеристики:
- Адрес: проспект Победителей 27
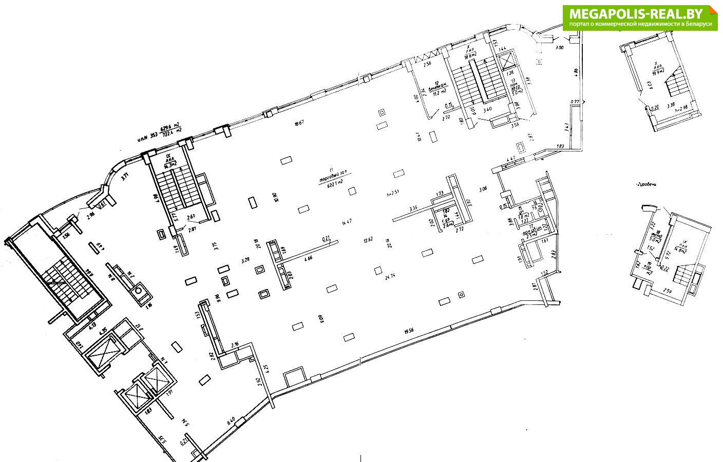
- Площадь: 722,4 м2
- Статус: Помещение с действующим арендатором
- Формат: Open-space
Предлагаем вашему вниманию уникальное коммерческое помещение, расположенное в самом сердце города. Это предложение идеально подходит как для инвесторов, так и для собственников, желающих расширить свой бизнес. Помещение с арендатором гарантирует стабильный доход и минимизирует риски.
Преимущества помещения:
Удобное расположение:
- Высокая проходимость и видимость.
- Наличие рядом развитой инфраструктуры: кафе, магазины, банки, транспортные остановки.
- Удобный доступ к основным транспортным артериям города.
Планировка:
- Помещение выполнено в формате Open-space с рядом перегородок, что позволяет эффективно организовать рабочие процессы.
- Зона отдыха и кухня создают уютную атмосферу для сотрудников и посетителей.
На период с 7 по 19 августа связываться по мессенджерам whatsp, telegram, viber.
Лицензия: 02240/446 МЮ РБ, 11.07.2022
- Площадь: 722 м2
- Регион: Минск и район
- Населенный пункт: г. Минск
- Микрорайон: Победителей
- Адрес: Победителей просп. д. 27
- Контактное лицо: Дмитрий
- Телефон: +375 29 653-98-53
- Телефон: +375 29 653-98-53
- Вид сделки: Предложение


в избранное























