Продажа / покупка: Продажа производственного комплекса с земельным участком в Смоленской области, Минск,
Предлагаем Вашему вниманию производственный комплекс с земельным участком, расположенный по адресу: Смоленская обл., Краснинский район, пгт. Красный, ул. Глинки, д.1В.
Земельный участок– 0,5398 Га в собственности юридического лица.
Вид разрешенного использования - для эксплуатации производственной базы. Категория земель - земли населенных пунктов.
Земельный участок находится в промышленной зоне. Имеется возможность размещения производства IV - V классов опасности. До ближайших жилых домов более 150 метров.
Территория с асфальтированным покрытием, огорожена забором по периметру участка. Подъездные пути – песчано-гравийная смесь.
На участке расположено здание цеха по изготовлению литых и штампованных металлических изделий, контрольно-пропускной пункт, административное здание и залит монолитный ж/б фундамент под склад из сэндвич-панелей для хранения металла.
Имеется вся проектная документация и разрешение на строительство.
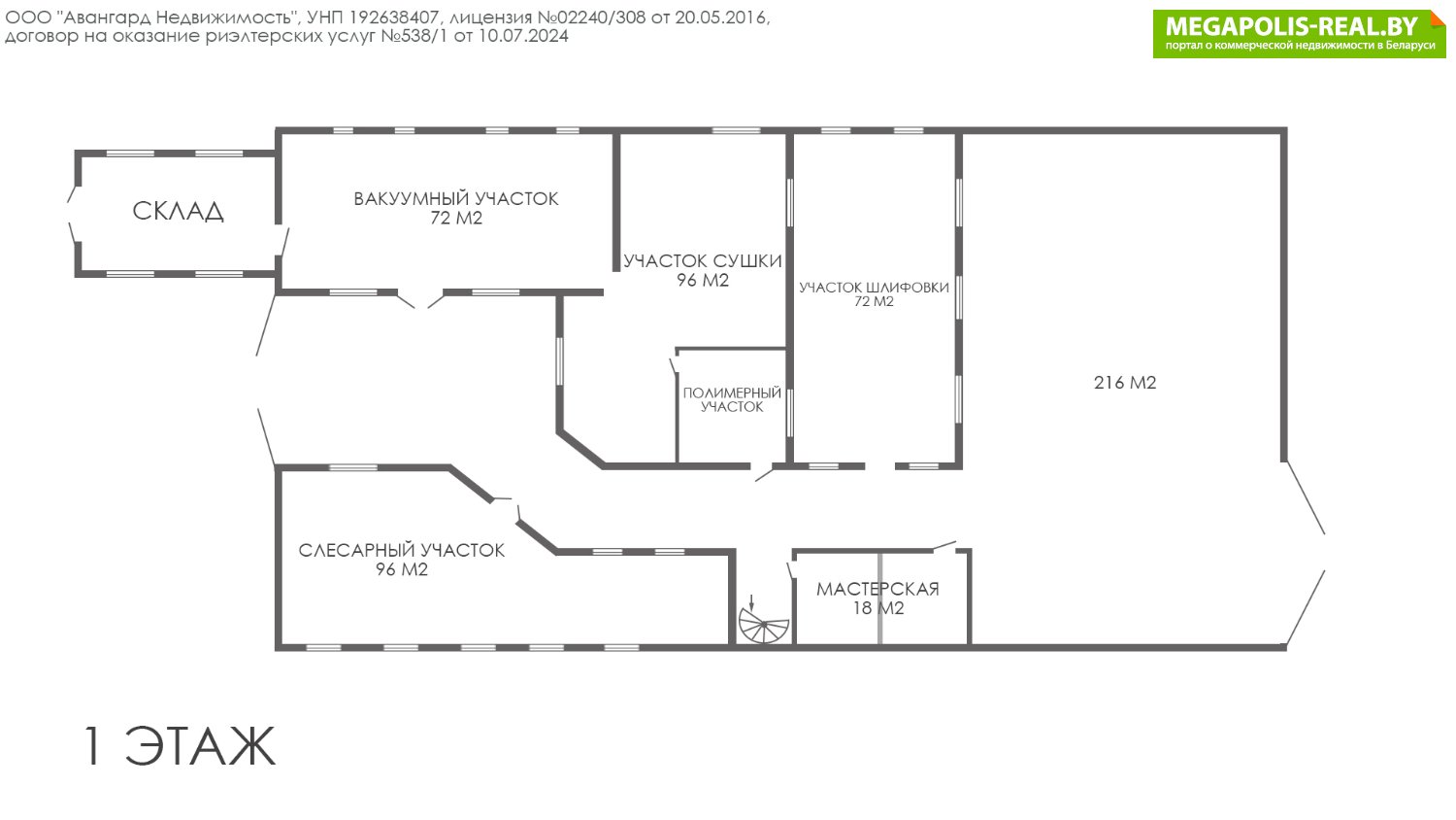
Здание цеха – 656,6 кв.м. 1й этаж + 353,4 кв.м. 2й этаж
Стены - металлопрофиль. Полы – бетонные плиты перекрытия.
Год постройки – 2003 г.
Административное здание – 70,5 кв.м.
Стены – утепленный металлопрофиль. Полы – деревянные.
Год постройки – 2023 г.
Общие характеристики:
- круглосуточный доступ;
- здания отапливаются электрорадиаторами;
- заведенная электрическая мощность – 397,4 кВт;
- водоснабжение центральное (канализация местная);
- территория находится под охраной, видеонаблюдение.
- мобильный интернет.
Местоположение:
Объект расположен в 19-ти километрах от границы с РБ и в 50-ти км от г. Смоленск. Прямой выезд на трассу M-1 «Брест - Москва».
Цена указана с учетом НДС. Торг уместен!
Звоните! Покажем и ответим на все интересующие вопросы.
Подробнее...- Год постройки: 2003
- Площадь: 1080 м2
- Назначение: Производственные склады
- Этажность здания: 1
- Высота потолков: -
- Вода/канализация: да
- Мощность электричества: 398.5 кВТ
- Парковка: да
- Охрана: да
- Режим работы здания: 24/7
- Интернет: есть
- Видеонаблюдение: да
- Контактное лицо: Анна
- Телефон: +375 29 110-62-62
- E-mail: avangardn1212@gmail.com
- Телефон: +375 29 110-62-62
- Вид сделки: Предложение
- Цена: с НДС
- Форма собственности: Частная
- Тип договора: продажа объекта
- Стоимость коммунальных услуг
(за все помещение):В отопительный сезон: - руб.В неотопительный сезон: - руб.


в избранное







































































