Продается квартира по адресу Игоря Лученка ул. д. 27, г. Минск
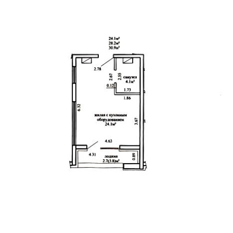
- Количество комнат: однокомнатная
- Этаж: 4 этаж из 25
- Санузел: раздельный
- Планировка: новостройка
- Год постройки: 2023
Предлагаем вашему вниманию светлую уютную студию в лучшей локации ЖК Минск-Мир.
Дом почти заселен, что избавит вас от многолетних ремонтов соседей, рядом ТЦ Авиа-Молл, метро Аэродромная 4 минуты ходьбы, школа и детский сад в шаговой доступности, множество магазинов, кафе, салонов красоты.
Рядом остановки общественного транспорта.
В доме 3 лифта грузовой и пассажирский, хорошие соседи.
Продажа в связи с расширением.
Лицензия: 02240/446 от 11.07.2022, Министерство юстиции РБ
- Регион: Минск и район
- Населенный пункт: г. Минск
- Жилой комплекс: Минск Мир
- Микрорайон: Минск Мир
- Адрес: Игоря Лученка ул. д. 27
- Метро: Аэродромная
- Район: Октябрьский
- Контактное лицо: Мария
- Телефон: +375 29 190-00-88
- Телефон: +375 29 190-00-88
- Продажа квартиры


в избранное



















































































































































