Продается квартира по адресу Игоря Лученка ул. д. 28, г. Минск
- Количество комнат: трехкомнатная
- Этаж: 2 этаж из 25
- Санузел: раздельный
- Планировка: новостройка
- Год постройки: 2024
3-комнатная квартира cо стильным ремонтом в доме по адресу ул. И Лученка, 28
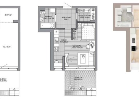
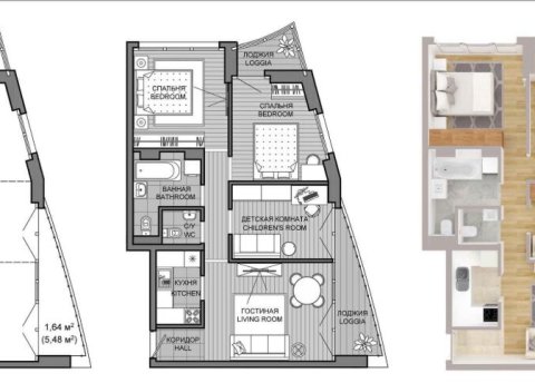
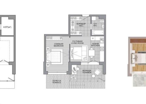
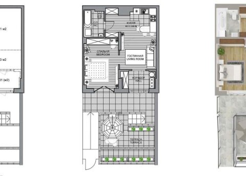
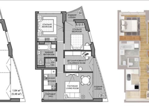
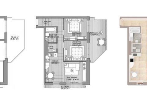
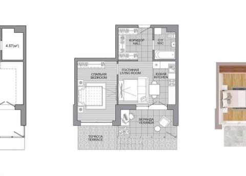
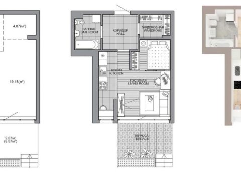
Квартира с расположена на 2 этаже 25-ти этажного каркасно-блочного дома. Общая площадь квартиры по СНБ – 55,3 м2, площадь без балкона и лоджии – 53,1 м2.
Отличная функциональная планировка: две изолированные комнаты и просторная кухня-гостиная.
В квартире выполнен современный качественный ремонт (делали для себя) из дорогостоящих материалов:
- напольное покрытие – кварц винил
- в санузле испанская сантехника и плитка, столешница из натурального камня
- световое решение продумано до мелочей – установлен мастер выключатель.
Квартира полностью готова для проживания:
- встроенная кухня МДФ комбинирована столешницей и скинали из натурального камня, доводчики BLUM.
- необходимая бытовая техника и мебель,
- вместительная зона хранения
Просторное лобби. Здесь располагается ресепшен с местом для консьержа, зона ожидания и санитарная комната. Установлены три современных скоростных бесшумных лифта ОTIS (панорамный, обычный и грузовой). Сквозной подъезд с выходом на детскую площадку.
Благоустроенная придомовая территория: современные детские площадки, колясочная и велосипедная для всех жильцов.
- Рядом с домом находятся остановки городского общественного транспорта,
-В нескольких минут от дома находиться станция метро «Аэродромная», здесь же откроет свои двери крупный торгово-развлекательный центр "Avia Mall".
-Автомобилисты также комфортно смогут не только доехать до дома, но и найти свободное парковочное место на уличной парковке.
- В квартале «Западная Европа» запланировано строительство современного детского сада с бассейном и двух поликлиник (детской и взрослой).
-Идеальный вариант для тех, кто ценит комфорт жизни в городе, близость метро и развитую инфраструктуру.
Поможем продать Вашу недвижимость для покупки данной квартиры.
Чистая продажа.
Лицензия: №02240/362 от 31.07.2018, Министерство юстиции РБ
- Регион: Минск и район
- Населенный пункт: г. Минск
- Жилой комплекс: Минск Мир
- Микрорайон: Минск Мир
- Адрес: Игоря Лученка ул. д. 28
- Метро: Аэродромная
- Район: Октябрьский
- Контактное лицо: Фаттория Плюс
- Телефон: +375 44 501-70-96
- Телефон: +375 44 501-70-96
- Продажа квартиры


в избранное


















































































































































































